4-Bedroom New American Barndominium-Style House with Outdoor Fireplace and Oversized RV Garage- 2631 Sq Ft (Floor Plan)

0 Shares

Specifications

  • Area: 2,631 sq. ft.
  • Bedrooms: 4
  • Bathrooms: 2.5
  • Stories: 1
  • Garages: 4

Welcome to the gallery of photos for the New American Barndominium-Style House with Outdoor Fireplace and Oversized RV Garage- 2631 Sq Ft. The floor plans are shown below:

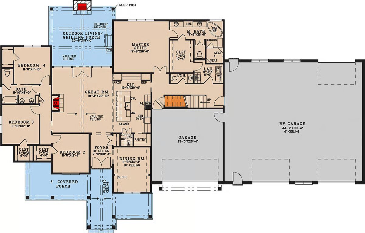
Main level floor plan
Second level floor plan

Buy This Plan

This bold, dark Barndominium stands out with its grand wood-beamed entryway and expansive, integrated garage space.
A massive wrap-around porch and heavy timber accents create a welcoming, yet imposing, modern farmhouse Barndominium.
The striking dark board-and-batten siding is beautifully contrasted by the warm wood posts framing the main entrance of this Barndominium home.
Functionality meets style with this Barndominium’s extensive garage bays and long, welcoming driveway approach.
A side view highlights the clean lines and vertical siding of this modern Barndominium, complete with a classic stone chimney.
The blend of a massive stone chimney and dark metal siding gives this Barndominium a rugged yet refined profile.
Enjoy outdoor living with the covered patio and dramatic stone fireplace chimney at the back of this stylish Barndominium.
The simple, powerful silhouette of the main structure features a horizontal band of windows, showcasing the Barndominium’s industrial roots.
Gather around the towering stone fireplace in this great room, featuring soaring wood plank walls and ceiling for a truly cozy cabin feel.
An open-concept design connects the plush seating area and grand fireplace to the kitchen’s island and bar seating, making entertaining a breeze.
This spacious, open kitchen boasts dark, rich wood cabinetry and a large central island, ideal for cooking and casual dining.
The vaulted wood ceiling and stone hearth perfectly frame this inviting living room, which flows seamlessly into a bar seating area.
Recessed lighting highlights the rich wood tones and extensive storage in this sophisticated, fully-equipped kitchen space.
A built-in coffee station and beverage center, flanked by matching refrigerators and rich cabinetry, offers peak kitchen convenience.
The central kitchen island, featuring a large apron sink and dishwasher, looks out over the warm, rustic living space.
Enjoy an intimate meal in this rustic dining room, where a wagon wheel chandelier illuminates the floor-to-ceiling wood paneling.

Buy This Plan

Blending New American style with Barndominium-inspired charm, this home offers 2,631 sq. ft. of living space with 4 bedrooms and 2.5 bathrooms.

A highlight of the property is the impressive 2,634 sq. ft. 4-car garage, providing abundant space for vehicles, storage, or workshop needs.

=> Looking for a custom Barndominium floor plan? Click here to fill out our form, a member of our team will be in touch.

💸 80% of Barndo Budgets Blow Up in Planning
Get the $7 tool that helps you avoid delays, overbidding & costly mistakes.
Grab the $7 Planner
0 Shares
See also  Luxury Barndominium-Style House with Upstairs Loft and Bedroom Suite (Floor Plan)

Lisa Young

Lisa Young, writer and construction pro, crafts custom homes. Captivated by barndominiums for four years, she shares insights and advice in engaging articles, empowering readers to create unique living spaces mirroring their aspirations. Join her exciting journey exploring barndominium living.

Recent Posts