Specifications
- Area: 3,793 sq. ft.
- Bedrooms: 5
- Bathrooms: 3.5
- Stories: 2
- Garages: 2
Welcome to the gallery of photos for the Barndominium with 2-Story Living Room. The floor plans are shown below:













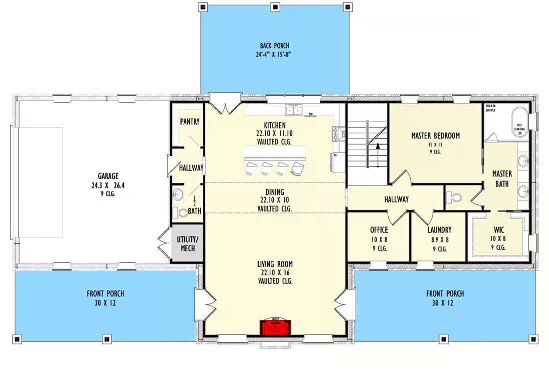
This beautifully designed 5-bedroom barndominium blends rustic charm with modern comfort, offering an expansive floor plan ideal for both family living and entertaining.
At the heart of the home, the open-concept living room, dining area, and kitchen boast soaring ceilings that enhance the sense of space and light.
On either side of the living room, 12-foot-deep covered porches invite you to relax outdoors, while a rear porch provides additional space to enjoy the surrounding views.
The main-level master suite offers convenience and privacy, paired with a nearby office and laundry room for everyday functionality.
A mud hall connects the kitchen to the attached 2-car garage and includes access to a walk-in pantry and powder bath.
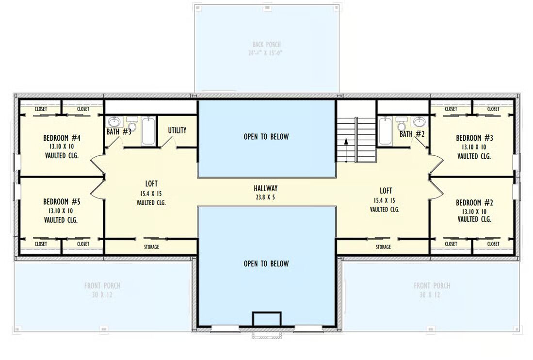
Upstairs, a dramatic catwalk overlooks the living area, adding architectural interest. Each wing of the second floor features a cozy loft space and two bedrooms that share a full bathroom—perfect for family or guests.
With its open design, multiple porches, and thoughtful layout, this home offers the perfect balance of indoor comfort and outdoor living, making it an ideal choice for those seeking the barndominium lifestyle.
=> Looking for a custom Barndominium floor plan? Click here to fill out our form, a member of our team will be in touch.
