Specifications
- Area: 3,399 sq. ft.
- Bedrooms: 4
- Bathrooms: 3.5
- Stories: 2
- Garages: 4
Welcome to the gallery of photos for the Barndominium Style House with Two Laundry Rooms and a Detached Garage. The floor plans are shown below:


Buy This Plan



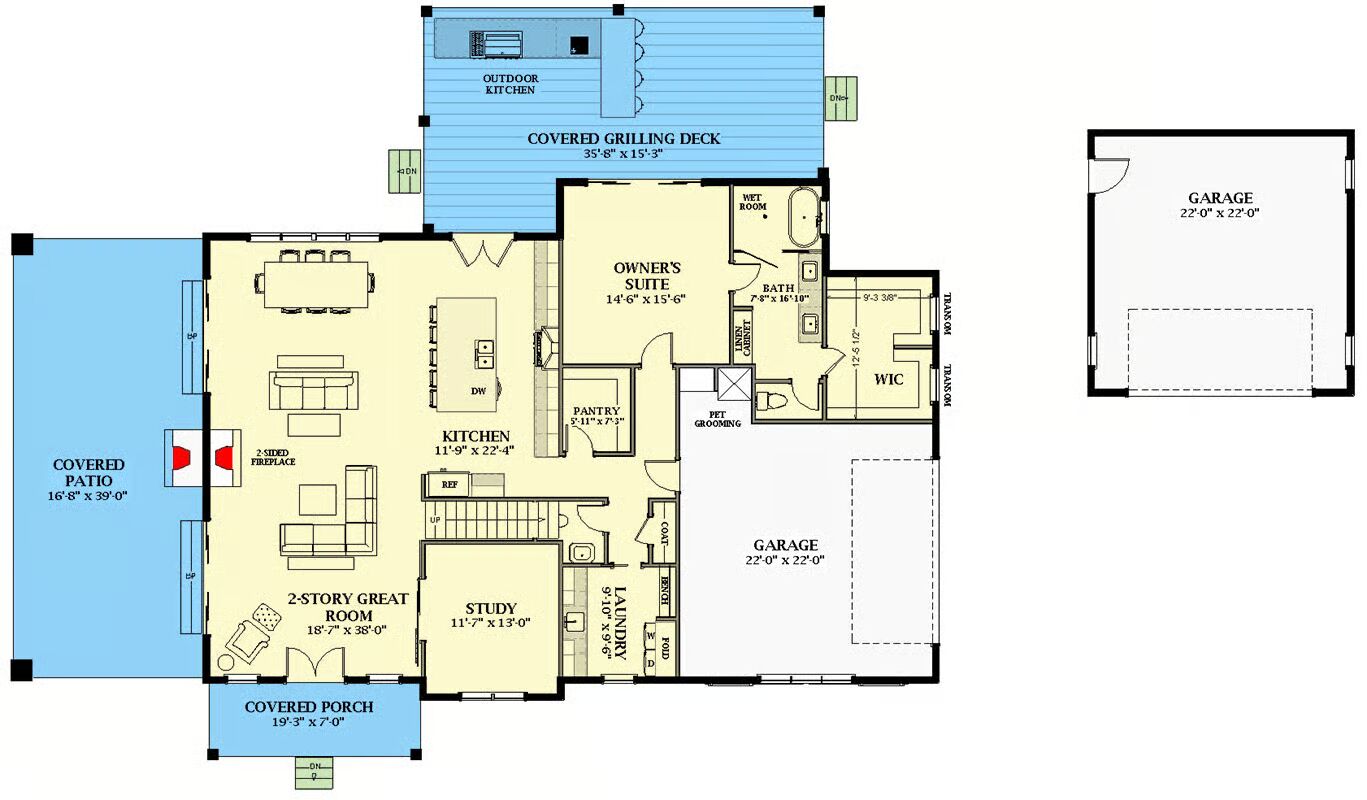
This barndominium-inspired home, crafted with 2×6 exterior wall construction, offers 4 bedrooms, 3.5 bathrooms, and 3,399 square feet of heated living space.
A 2-car side-entry garage pairs with a matching 2-car detached garage, together providing 1,075 square feet of garage space for vehicles, storage, or hobbies.
The main-level master suite is a private retreat, featuring sliding door access to the covered grilling deck complete with an outdoor kitchen.
Another covered outdoor living space, accessible from both the two-story great room and the dining/living area, adds versatility and style. With its own fireplaceāmirroring the cozy interior fireplaceāitās the perfect spot for year-round entertaining.
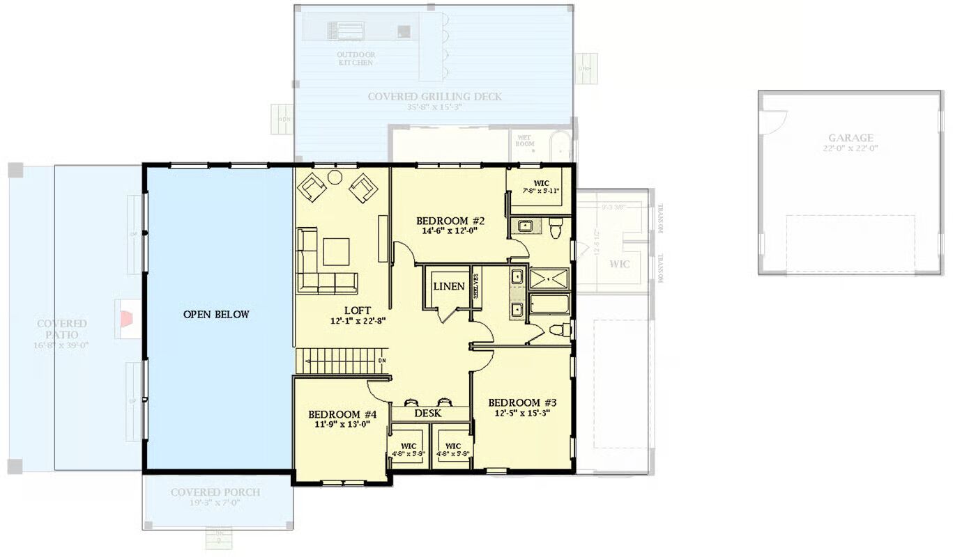
Practicality meets convenience with two laundry rooms: a spacious main-level laundry and a secondary upstairs laundry to serve the additional bedrooms.
=> Looking for a custom Barndominium floor plan? Click here to fill out our form, a member of our team will be in touch.
