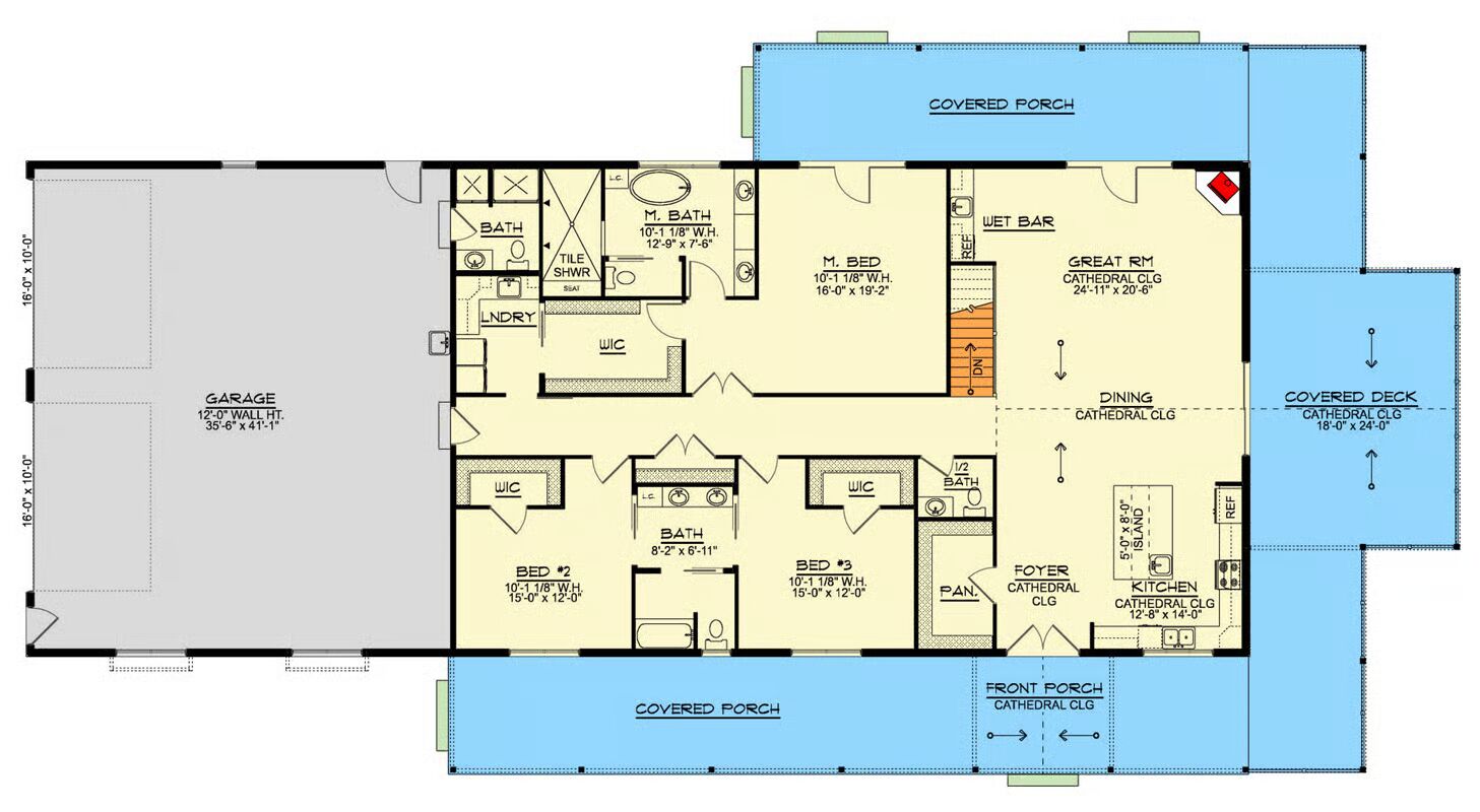
Specifications
- Area: 2,856 sq. ft.
- Bedrooms: 3
- Bathrooms: 3.5
- Stories: 1
- Garages: 4
Welcome to the gallery of photos for the Expansive Rustic Farmhouse Ranch Walkout Home with Wrap-Around Porch & 4-Car Garage. The floor plans are shown below:


Buy This Plan










This luxurious single-level home offers 2,856 sq. ft. of finished living space with 3 bedrooms, 3.5 baths, and an impressive 1,512 sq. ft. attached 4-car garage, combining refined design with exceptional functionality.
Step through the grand entry into an open-concept great room, where soaring ceilings and abundant natural light create an airy, inviting atmosphere.
The chef-inspired kitchen anchors the space, featuring a spacious island, integrated wet bar, and seamless flow into the dining and living areas—perfect for entertaining and everyday comfort.
The private primary suite serves as a tranquil retreat, complete with dual walk-in closets, a spa-style bathroom, and direct outdoor access to enjoy the peaceful surroundings. Secondary bedrooms are thoughtfully positioned for privacy, ideal for family or guests.
An optionally finished walkout lower level mirrors the main floor’s generous layout, offering flexible living space, a secure safe room, and additional areas for storage or customization.
Designed for both beauty and functionality, this home’s wrap-around porch provides expansive covered outdoor living, seamlessly blending indoor comfort with panoramic outdoor views—a perfect setting for relaxation and entertaining.
=> Looking for a custom Barndominium floor plan? Click here to fill out our form, a member of our team will be in touch.
