Specifications
- Area: 3,105 sq. ft.
- Bedrooms: 4
- Bathrooms: 2.5
- Stories: 2
- Garages: 3
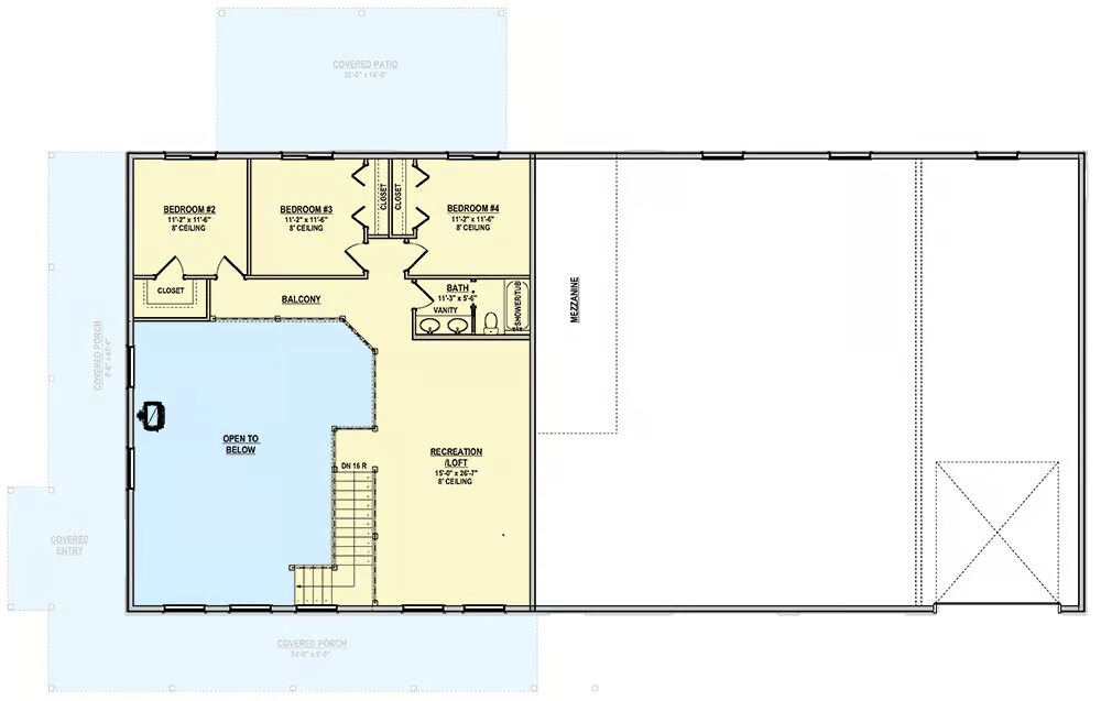
Welcome to the gallery of photos for the Barndominium-Style House with Farmhouse Appeal and Wraparound Porch – 3105 Sq Ft. The floor plans are shown below:










This charming barndominium-style home blends farmhouse character with modern functionality.
An inviting 8-foot-deep wraparound porch sets the tone for relaxed country living, while the soaring two-story great room creates a dramatic and light-filled centerpiece for the home.
The main-level master suite offers comfort and convenience, thoughtfully positioned for privacy.
Upstairs, three additional bedrooms share a well-appointed bath and a spacious loft overlooking the great room below – perfect as a family lounge, study space, or play area.
Crafted with conventional wood framing and 2×6 exterior walls, this design ensures durability while delivering timeless style.
=> Looking for a custom Barndominium floor plan? Click here to fill out our form, a member of our team will be in touch.
