Specifications
- Area: 855 sq. ft.
- Bedrooms: 2
- Bathrooms: 2
- Stories: 2
- Garages: 3
Welcome to the gallery of photos for the Modern Barndominium House: 3-Car Garage, Workshop. The floor plans are shown below:







Discover modern rustic charm in this beautifully designed Barndominium, showcasing vertical siding, a dark metal roof, and 855 sq. ft. of efficiently planned living space—all on one convenient level.
This inviting home features 2 bedrooms and 2 full bathrooms, paired with an impressive 1,513 sq. ft. three-car attached garage.
A welcoming 206 sq. ft. covered front porch leads you inside, where a smart open-concept layout instantly creates a warm and connected living environment.
The main entry opens directly into the central living spaces, with the kitchen thoughtfully positioned to serve both the dining and living areas—perfect for everyday living and effortless entertaining.
A flexible room just off the main living space offers the ideal spot for a home office, studio, or hobby room, adapting easily to your lifestyle. Added convenience comes from the main-level laundry room, designed for everyday efficiency.
The primary bedroom suite sits on the main floor, offering a private and restful retreat, while the secondary bedroom is located nearby—well-suited for family members or overnight guests.
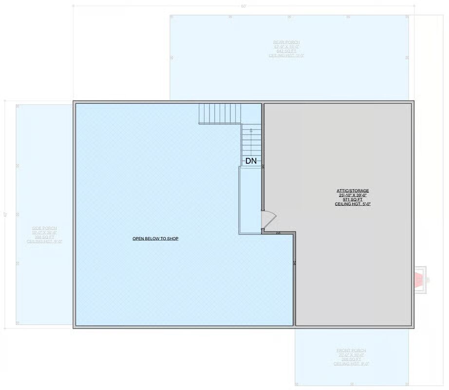
A standout feature of this plan is the expansive three-car garage, complete with a dedicated workshop area and generous storage space totaling 982 sq. ft.
Multiple access points from both the front and rear enhance functionality, whether for vehicles, projects, or recreational equipment.
Outdoor living is well catered for, with three covered porches offering abundant space to enjoy the surrounding scenery.
The 206 sq. ft. front porch sets the tone for relaxed mornings, the 642 sq. ft. rear porch is ideal for outdoor dining or gatherings, and the additional 398 sq. ft. side porch provides even more room for lounging or entertaining.
For those seeking additional space, an optional bonus room with an impressive 13′ 3″ ceiling height provides the perfect opportunity to expand—ideal for a guest suite, home office, or recreation room tailored to your needs.
This Barndominium blends rustic charm, modern function, and flexible spaces to create a home designed for both comfort and lifestyle versatility.
=> Looking for a custom Barndominium floor plan? Click here to fill out our form, a member of our team will be in touch.
