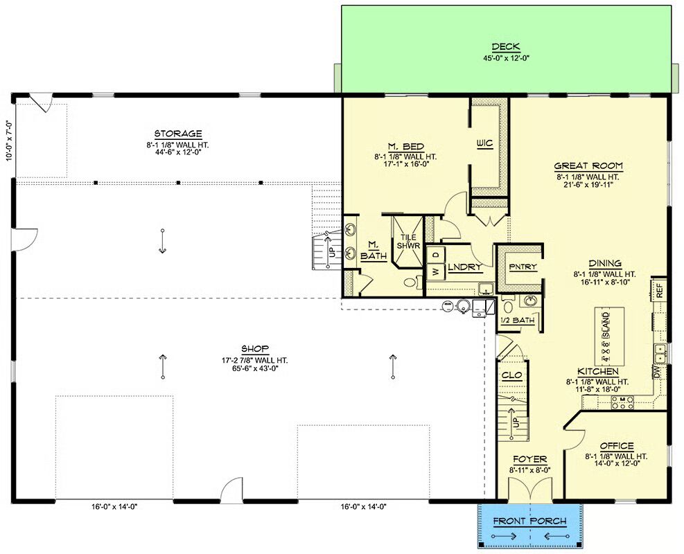
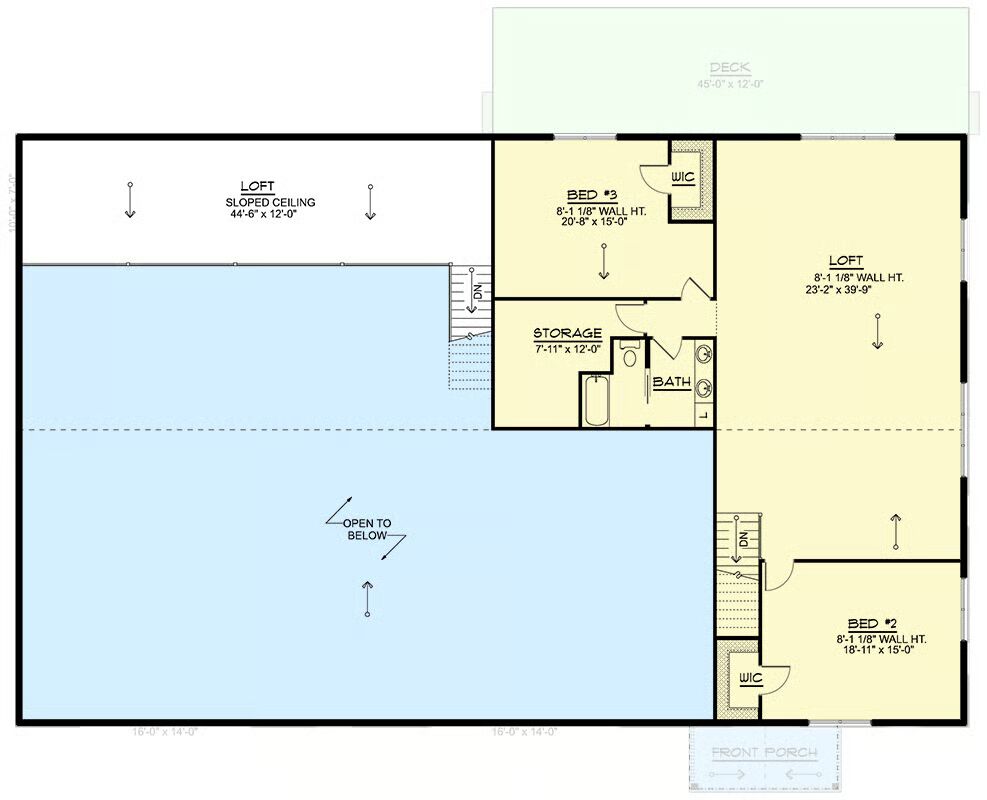
Specifications
- Area: 3,816 sq. ft.
- Bedrooms: 3
- Bathrooms: 2.5
- Stories: 2
- Garages: 4-6
Welcome to the gallery of photos for the Barndominium with Oversized Garage and Workshop – 3816 Sq Ft. The floor plans are shown below:






This barndominium home plan features 3,816 sq. ft. of heated living space, offering 3 bedrooms and 2 bathrooms in a bright, open layout designed for modern living.
A 3,107 sq. ft. garage provides ample room for three vehicles, storage, or workshop space—perfect for car enthusiasts, hobbyists, or those needing extra room for RVs and equipment.
=> Looking for a custom Barndominium floor plan? Click here to fill out our form, a member of our team will be in touch.
