Specifications
- Area: 3,444 sq. ft.
- Bedrooms: 2
- Bathrooms: 2
- Stories: 1
- Garages: 5
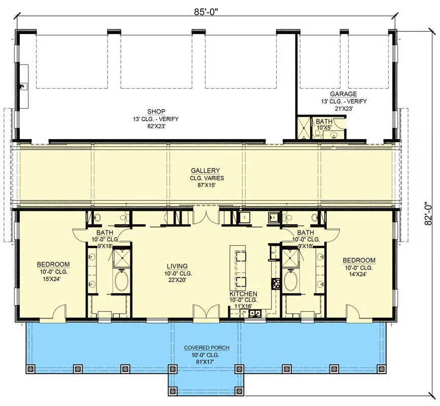
Welcome to the gallery of photos for the Barndominium with 1,564 Sq Ft Workshop. The floor plan is shown below:


Designed for the perfect work/life balance, this barndominium home plan combines comfortable 2-bedroom living with an expansive 1,564 sq. ft. workshop and double garage.
A welcoming 17’-deep front porch captures the essence of rural living and provides access to both the heart of the home and the private bedroom suites. Inside, the open-concept layout seamlessly connects the kitchen, living, and dining areas.
The kitchen features a large island with snack bar seating and a sink positioned to capture forward-facing views.
Flanking the central living space, each bedroom suite includes a spa-inspired 5-fixture bathroom and spacious walk-in closet. A 15’ gallery hall separates the residence from the oversized workshop and garage, ensuring both convenience and privacy.
=> Looking for a custom Barndominium floor plan? Click here to fill out our form, a member of our team will be in touch.
