Specifications
- Area: 2,765 sq. ft.
- Bedrooms: 3
- Bathrooms: 2.5+
- Stories: 2
- Garages: 4
Welcome to the gallery of photos for the Barndominium with 2-Story Living Room and 4-Car Tandem Garage – 2765 Sq Ft. The floor plans are shown below:












Barndominiums are redefining country living, and this stunning plan shows why. A full wraparound porch extends the living space outdoors, creating the perfect spot for morning coffee, evening gatherings, or simply enjoying the views.
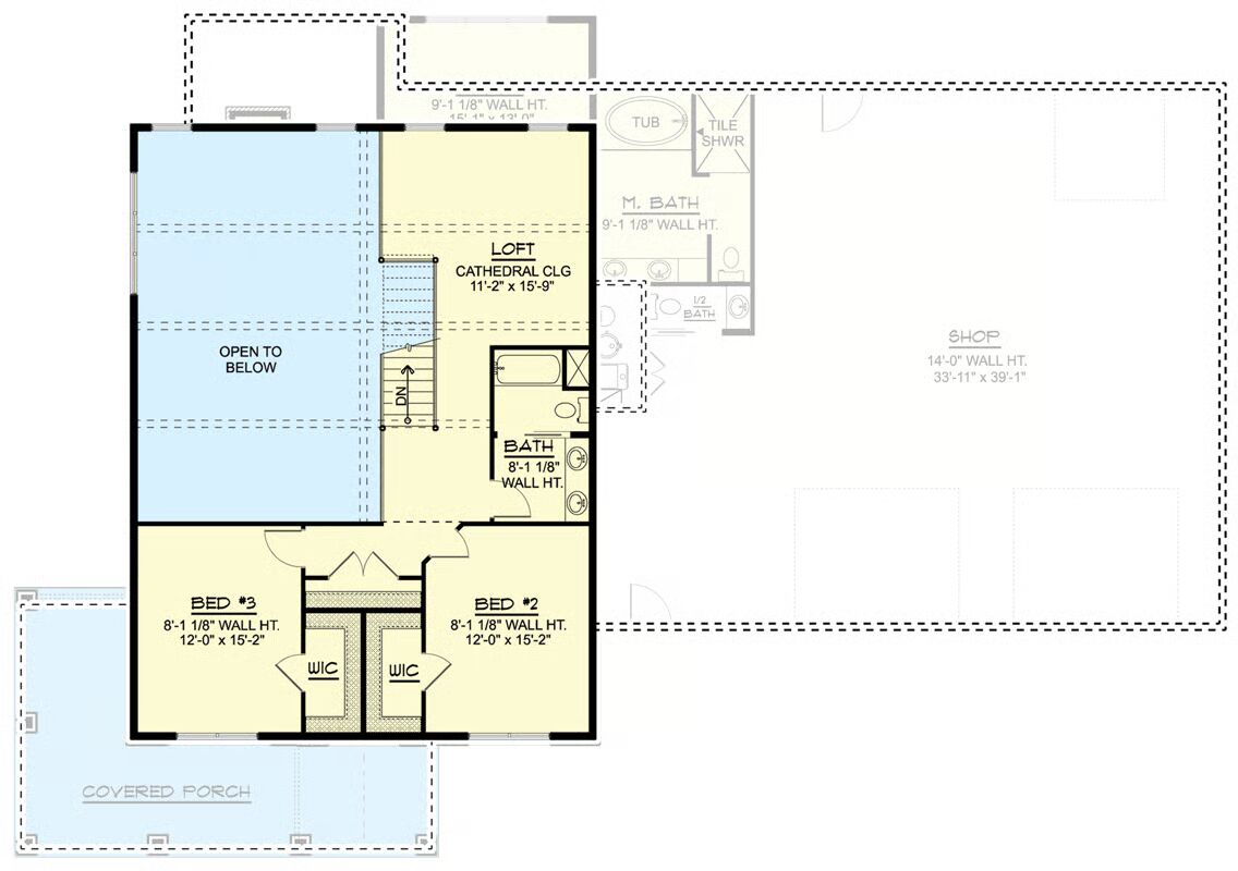
Inside, the heart of the home boasts a dramatic 2-story ceiling above the living and dining rooms, filling the space with light and openness. The spacious kitchen is designed for effortless entertaining, while a quiet den nearby offers a private retreat for work or relaxation.
The main-level primary suite provides a true sanctuary with a spa-like 5-fixture bath and a walk-in closet that conveniently connects to the laundry room. Upstairs, two secondary bedrooms are mirror images of one another and share a loft-style living area, ideal for a playroom or lounge.
Car enthusiasts and hobbyists will love the expansive 1,685 sq. ft. garage, offering tandem parking for up to four vehicles plus rear access for smaller equipment.
Designed with durable 2×6 exterior walls and finished in corrugated metal siding, this barndominium delivers lasting style, functionality, and charm for modern countryside living.
=> Looking for a custom Barndominium floor plan? Click here to fill out our form, a member of our team will be in touch.
