3-Bedroom 3000 Square Foot Barndominium-Style House in Popular 80 by 50 Footprint (Floor Plan)

20 Shares

Specifications

  • Area: 3,054 sq. ft.
  • Bedrooms: 3
  • Bathrooms: 3
  • Stories: 2
  • Garages: 6

Welcome to the gallery of photos for the 3000 Square Foot Barndominium-Style House in Popular 80 by 50 Footprint. The floor plans are shown below:

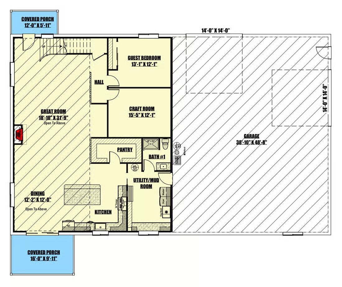
Main level floor plan
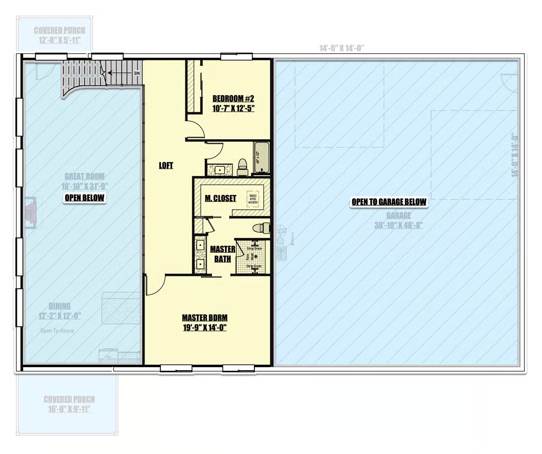
Second level floor plan

Buy This Plan

This striking barndominium combines rustic charm and modern living with an expansive metal exterior and a welcoming timber-framed porch.
A relaxing backyard retreat with a covered porch and hot tub offers the perfect balance to the home’s sturdy industrial design.
The side profile showcases a long, sleek metal roof and a cozy patio with a hot tub, making indoor-outdoor living effortless.
Long and functional, this view highlights the beautiful contrast of the light siding, dark windows, and natural stone wainscot.
The front elevation makes a grand statement with a massive, wood-paneled garage door beneath the sharp lines of the metal cladding.
Blending utility and curb appeal, this angle features both a prominent garage entry and a sheltered front door for guests.
Industrial style meets country elegance with two impressive wooden garage doors flanked by a stylish stone foundation.
A symmetrical front view centers on the stunning, oversized garage door, ready to welcome vehicles and hobbies alike.
The sweeping country setting perfectly frames the home’s profile, highlighting the practical yet stylish design.
Large black windows punctuate the bright siding, drawing the eye to the cozy porches and the lush surrounding landscape.
The soaring two-story great room features an open-concept layout, a towering stone fireplace, and a sleek metal staircase leading to the loft.
The chef-ready kitchen impresses with a bright white aesthetic, a wooden-base island for seating, and a dramatic high ceiling.
This bright and contemporary kitchen features a spacious white countertop, sleek cabinetry, and rustic wood accents that tie into the home’s theme.
Sunlight pours into the vast main living area, where a contemporary loft railing and rustic wood beam add a modern farmhouse touch.
An impressive living space boasts an abundance of natural light, a dramatic fireplace, and a comfortable setup for relaxation and entertaining.
The stylish wooden treads and industrial metal railing of the staircase serve as a striking focal point in the airy, open floor plan.
The master bedroom offers a chic retreat with a striking dark accent wall, vaulted ceiling, and ample window space.

Buy This Plan

This 3,054 sq. ft. barndominium-style home features a highly sought-after 80′ x 50′ footprint with 1,977 sq. ft. of garage space, accessible through dual 14′ x 14′ overhead doors on two sides.

The interior is anchored by a two-story great room that seamlessly flows into the dining area and kitchen, creating the perfect setting for entertaining. A railed staircase leads to a spacious loft overlooking the great room below.

Upstairs, the private master suite boasts a sliding barn door entry to a luxurious bath with dual vanities, a dual-head shower, and a large walk-in closet. A second bedroom and full hall bath complete the upper level.

Top 5 Mistakes DIY Barndo Builders Make!
Most self-builders lose $10K+ before breaking ground.
Grab the Planner

On the main floor, the kitchen includes a walk-in pantry and pocket door access to the mudroom, while a full bath just off the garage provides convenience after outdoor or workshop projects. A guest bedroom and **craft room—ideal as a home office—round out the floor plan.

=> Looking for a custom Barndominium floor plan? Click here to fill out our form, a member of our team will be in touch.

đź’¸ 80% of Barndo Budgets Blow Up in Planning
Get the $7 tool that helps you avoid delays, overbidding & costly mistakes.
Grab the $7 Planner
20 Shares

Lisa Young

Lisa Young, writer and construction pro, crafts custom homes. Captivated by barndominiums for four years, she shares insights and advice in engaging articles, empowering readers to create unique living spaces mirroring their aspirations. Join her exciting journey exploring barndominium living.

Recent Posts