4-Bedroom 2671 Square Foot Barndominium-Style House with RV-Friendly 1555 Square Foot Garage (Floor Plan)

84 Shares

Specifications

  • Area: 2,671 sq. ft.
  • Bedrooms: 4
  • Bathrooms: 2.5
  • Stories: 2
  • Garages: 3

Welcome to the gallery of photos for the 2671 Square Foot Barndominium-Style House with RV-Friendly 1555 Square Foot Garage. The floor plans are shown below:

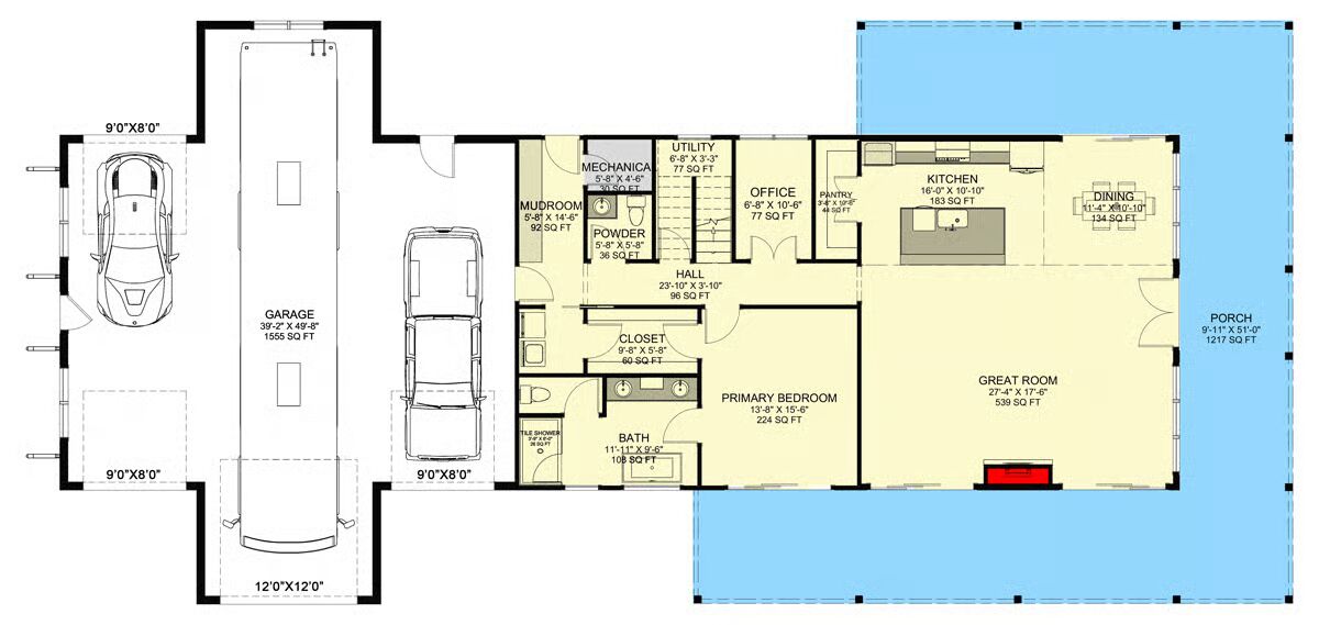
Main level floor plan
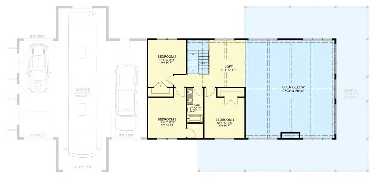
Second level floor plan

Buy This Plan

Experience modern farm living with this stylish barndominium, featuring an expansive garage and an inviting covered porch.
Discover the striking angles and contemporary appeal of this unique barndominium, framed by lush greenery.
Admire the sleek, dark exterior and abundant windows that bring the outdoors in on this impressive barndominium.
Unwind on the spacious covered patio of this elegant barndominium, offering seamless indoor-outdoor living.
Be captivated by the grand facade and welcoming wrap-around porch of this stunning barndominium.
Savor the charm of this barndominium’s outdoor spaces, from the relaxed porch to the well-landscaped surroundings.
Step into a bright and airy living room, boasting soaring ceilings, a modern fireplace, and picturesque outdoor views.
Gather around the sleek island in this contemporary kitchen, designed for both culinary creativity and effortless entertaining.
Ascend to a charming loft space, featuring vaulted ceilings and a cozy nook perfect for reading or relaxation.
Marvel at the open-concept design from above, showcasing a fluid transition between living, dining, and kitchen areas bathed in natural light.
Retreat to a tranquil bedroom, where a rustic bed frame and scenic art create a peaceful, inviting sanctuary.
Relax in a modern bathroom with a chic double vanity and a soaking tub perfect for unwinding.
Enjoy the bright, clean lines of this modern shower, featuring striking tiled accents and a large window for natural light.

Buy This Plan

Experience the perfect balance of rustic character and modern design in this 4-bedroom, 2.5-bath barndominium-style home offering 2,671 square feet of heated living space. Built with durable 2×6 framing, this residence is as functional as it is stylish.

The impressive 3-car garage spans 1,555 square feet, featuring two 9′ by 8′ overhead doors—one with convenient drive-through access—flanking a central RV-ready bay with a 12′ by 12′ door.

A wraparound porch nearly 10 feet deep extends across three sides of the home, providing 1,217 square feet of covered outdoor living for year-round enjoyment.

Top 5 Mistakes DIY Barndo Builders Make!
Most self-builders lose $10K+ before breaking ground. Avoid all 5 with this $7 planner.
Grab the Planner

Inside, the open-concept floor plan showcases a two-story great room that flows seamlessly into the dining area and chef’s kitchen, complete with a walk-in pantry and oversized island.

A private home office with French doors sits across the hall from the luxurious master suite, which includes a walk-in closet with direct access to the laundry room.

Upstairs, three additional bedrooms share a hall bath with dual vanities, while a spacious loft with open rail overlooks the great room below, adding light and connection to the main living area.

This thoughtfully designed plan combines versatility, comfort, and timeless style—perfect for families seeking space and function with barndominium-inspired charm.

See also  2-Bedroom Barndominium-Style House with Vaulted Great Room and Breezeway to 4-Car Garage (Floor Plan)

=> Looking for a custom Barndominium floor plan? Click here to fill out our form, a member of our team will be in touch.

đź’¸ 80% of Barndo Budgets Blow Up in Planning
Get the $7 tool that helps you avoid delays, overbidding & costly mistakes.
Grab the $7 Planner
84 Shares

Lisa Young

Lisa Young, writer and construction pro, crafts custom homes. Captivated by barndominiums for four years, she shares insights and advice in engaging articles, empowering readers to create unique living spaces mirroring their aspirations. Join her exciting journey exploring barndominium living.

Recent Posts