Specifications
- Area: 2,423 sq. ft.
- Bedrooms: 3
- Bathrooms: 2.5
- Stories: 2
- Garages: 3
Welcome to the gallery of photos for the 2400 Square Foot Farmhouse-Inspired Barndominium with Wraparound Porch. The floor plans are shown below:







Buy This Plan
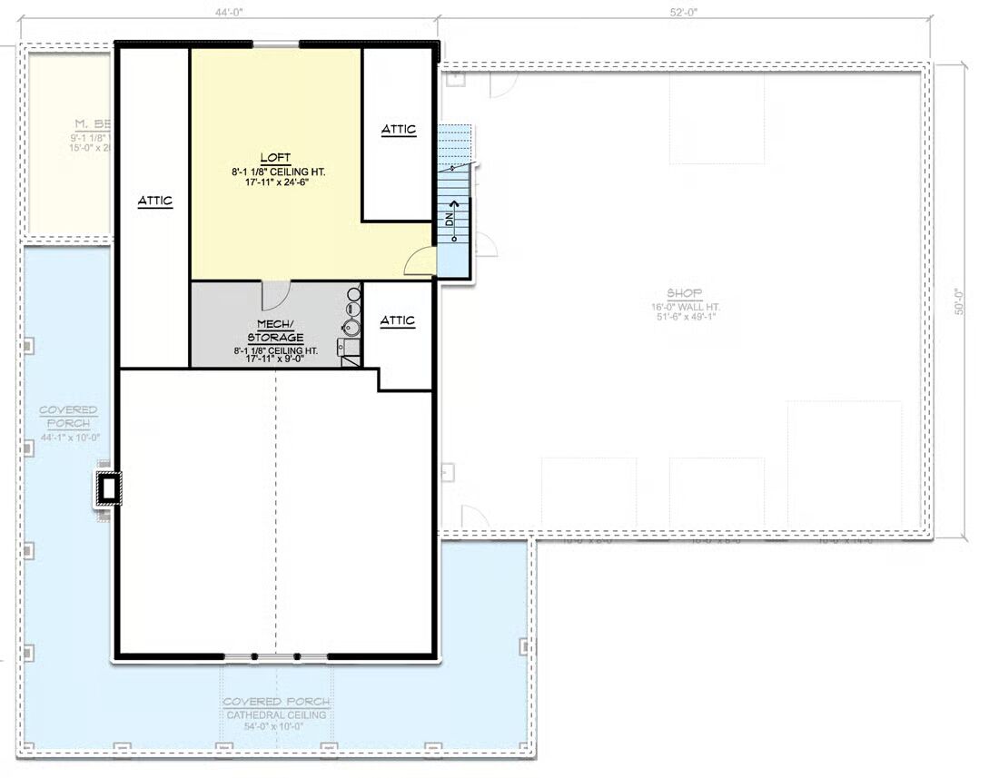
This Farmhouse-inspired barndominium blends rustic charm with modern convenience, offering 2,623 square feet of garage/workshop space complete with both front and rear overhead doors for easy access.
A staircase leads to a spacious second-level loft, perfect for use as a home office, hobby room, or additional storage.
The inviting wraparound porch sets the tone for country living, while French doors open into a stunning cathedral-ceiling great room with a cozy fireplace.
The open layout continues into the kitchen, which boasts a large center island and a built-in coffee bar—ideal for both daily living and entertaining.
Accommodations include three bedrooms, highlighted by a luxurious master suite with a generous walk-in closet and a spa-inspired 5-fixture bathroom. Two additional spacious bedrooms ensure comfort for family or guests.
Designed with corrugated metal siding for durability and classic farmhouse appeal, this home combines style, practicality, and versatility, making it an ideal choice for those seeking barndominium living with farmhouse charm.
=> Looking for a custom Barndominium floor plan? Click here to fill out our form, a member of our team will be in touch.
