Specifications
- Area: 2,820 sq. ft.
- Bedrooms: 2
- Bathrooms: 2.5
- Stories: 2
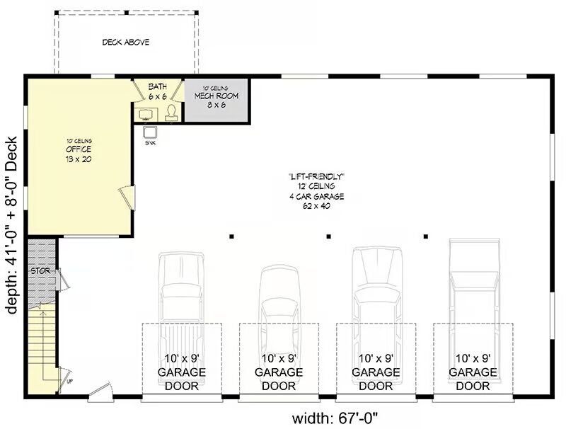
- Garages: 4
Welcome to the gallery of photos for the Barndominium with Home Office and Parking for 4 Cars. The floor plans are shown below:







This spacious 2-bedroom carriage house plan combines stylish living with practical design, highlighted by a 4-car garage on the main level—perfect for car enthusiasts or hobbyists.
The main floor also includes a dedicated home office, a half bath, and generous storage space, offering flexibility and convenience.
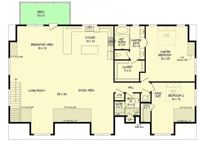
Upstairs, an inviting open-concept layout seamlessly connects the living room, dining area, and kitchen, which extends outdoors onto a private deck.
The kitchen features a U-shaped design with a central prep island and counter-height seating, ideal for both casual meals and entertaining.
The master suite offers a true retreat with a wet room–style en suite bathroom and a walk-in closet, while a second bedroom sits just across the hall, conveniently located near the laundry closet and a full bath.
=> Looking for a custom Barndominium floor plan? Click here to fill out our form, a member of our team will be in touch.
