3-Bedroom 2-Story Barndominium-Style Home with Master on 1st Floor and Loft – 2310 Sq Ft (Floor Plan)

0 Shares

Specifications

  • Area: 2,310 sq. ft.
  • Bedrooms: 3
  • Bathrooms: 2.5
  • Stories: 2
  • Garages: 2

Welcome to the gallery of photos for the 2-Story Barndominium-Style Home with Master on 1st Floor and Loft – 2310 Sq Ft. The floor plans are shown below:

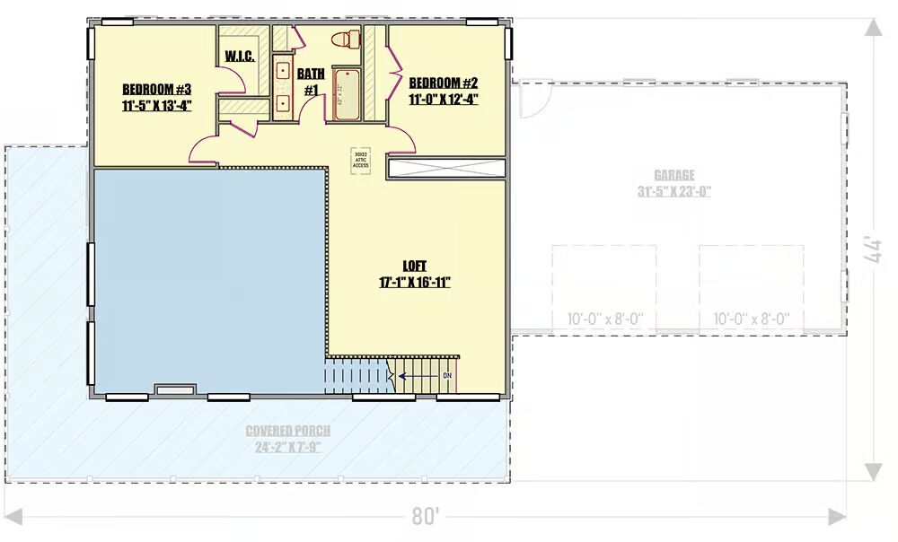
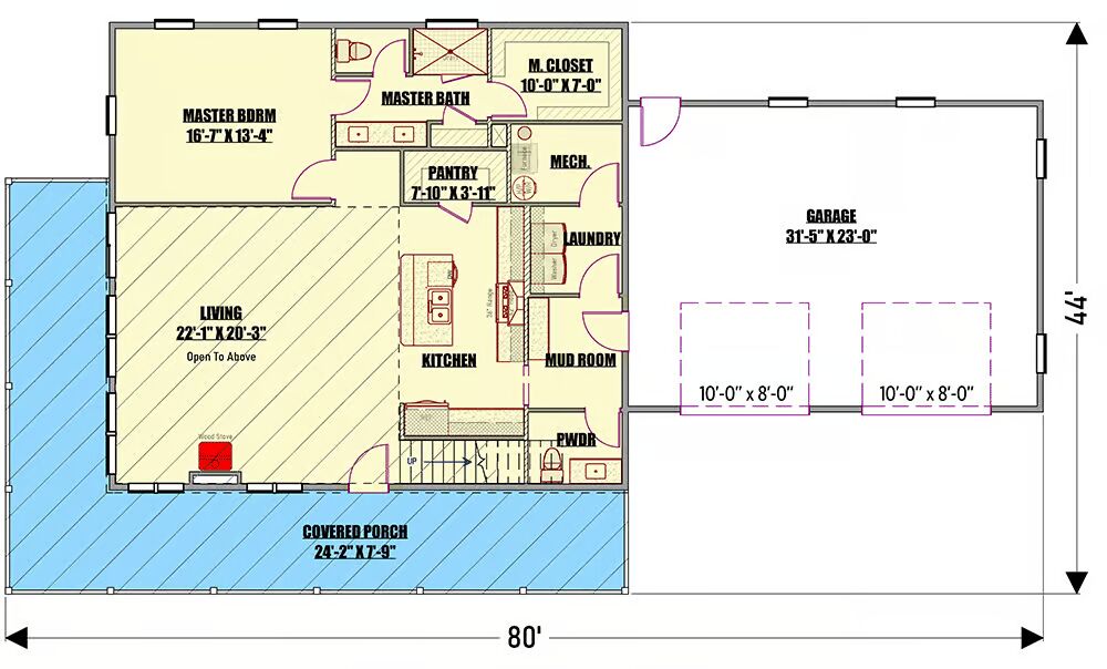
Main level floor plan
Second level floor plan

Buy This Plan

This magnificent barndominium combines a bright white exterior with a bold black roof and garage doors for a striking modern farmhouse look under a dramatic sky.
The classic black and white color scheme and expansive covered porch make this barndominium a perfect blend of rural charm and modern sophistication.
A wide front porch and crisp vertical siding define this Barndominium, creating a clean, welcoming facade surrounded by rolling hills.
A modern-rustic retreat featuring light siding, a deep wraparound porch, and a sleek glass-paneled garage door against a backdrop of trees.
The use of stone accents and glass garage doors elevates this Barndominium design, offering an industrial-chic twist to the traditional structure.
Enjoy the view from the covered side patio, which extends the living space outdoors and anchors the tall, modern form of the home.
A simple, clean profile defines the side of this Barndominium, where the vertical siding and dark-framed windows create a contemporary feel.
The layered design shows off the home’s size, featuring clean lines, dark trim, and a low-maintenance landscape.
This smaller Barndominium section presents a neat, minimalist aesthetic, focusing on clean vertical lines and simple geometry.
The bright, modern kitchen features a classic white barn door sliding open to reveal a hidden pantry, marrying style with ultimate utility.
A two-story vaulted ceiling and central linear fireplace create a dramatic, airy great room perfect for large gatherings.
This sun-drenched living space features plush, low-profile seating that takes full advantage of the panoramic landscape views through massive windows.
High-contrast design shines in this kitchen corner, where sleek black cabinetry is beautifully offset by a white marble waterfall island and backsplash.
The upper loft area serves as a chic second living room, featuring a striking black and wood railing and a built-in media center with glass doors.
A rich, reclaimed wood headboard brings warmth and natural texture to this contemporary bedroom design.
The elegant dining area makes a statement with upholstered nailhead chairs, a rustic wood table, and dramatic black-trimmed mirrors.

Buy This Plan

This two-story barndominium-style home delivers 2,310 sq. ft. of living space, complete with 3 bedrooms, 2.5 bathrooms, and a 760 sq. ft. 2-car garage.

The main floor showcases an open-concept design with a soaring vaulted ceiling, seamlessly connecting the living room, dining area, and kitchen—perfect for modern living and entertaining. The primary suite is thoughtfully placed on the first floor for privacy and convenience.

Upstairs, you’ll find two additional bedrooms and a loft, ideal for family, guests, or flexible use. A mudroom keeps the main living spaces organized, while the expansive wraparound porch provides a serene setting for outdoor relaxation year-round.

Top 5 Mistakes DIY Barndo Builders Make!
Most self-builders lose $10K+ before breaking ground.
Grab the Planner

=> Looking for a custom Barndominium floor plan? Click here to fill out our form, a member of our team will be in touch.

đź’¸ 80% of Barndo Budgets Blow Up in Planning
Get the $7 tool that helps you avoid delays, overbidding & costly mistakes.
Grab the $7 Planner
0 Shares
See also  2-Bedroom Modern Barndominium House with Wrap-Around Porch and Vaulted Loft (Floor Plan)

Lisa Young

Lisa Young, writer and construction pro, crafts custom homes. Captivated by barndominiums for four years, she shares insights and advice in engaging articles, empowering readers to create unique living spaces mirroring their aspirations. Join her exciting journey exploring barndominium living.

Recent Posts