Welcome to the gallery of photos for the 4-5 Bedroom Barndominium House with Wrap-Around Porch – 3052 Sq Ft. The floor plans are shown below:
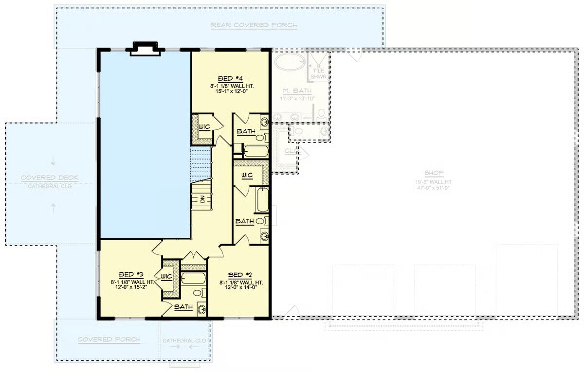
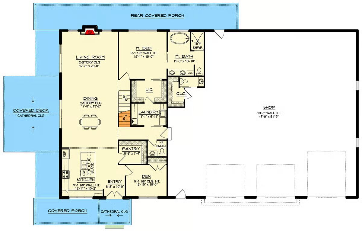
Main level floor planSecond level floor planBasement level floor plan
Buy This PlanThe ultimate barndominium, a striking white silhouette with black trim and a grand garage, stands ready to impress.An inviting approach reveals the home’s impressive scale and a welcoming porch, perfectly blending function and style.This expansive side view showcases the building’s sleek design and the charm of its long, covered porch.The rear of the home offers a multi-level haven for outdoor living, with a spacious deck overlooking a lush lawn.Experience a seamless connection to the outdoors, as this view highlights the extensive deck, covered patios, and natural stone accents.A modern kitchen features dark cabinetry, a stunning marble backsplash, and a sleek island that’s perfect for gathering.This kitchen is a sunlit dream, with a stylish island and a view to the backyard through elegant french doors.The open-concept living area boasts high ceilings and a grand staircase, creating a bright and connected space.A magnificent black brick fireplace soars to the ceiling, anchoring this chic, bright living room.A sophisticated hallway with striking black doors and minimalist decor connects the upper-level spaces.A tranquil bedroom retreat awaits, complete with a cozy wood headboard and a stunning piece of mountain art.This double-vanity bathroom shines with elegant, arched mirrors and a stylish dark subway tile backdrop.This sleek bathroom combines a classic free-standing tub with modern fixtures and a contrasting dark tiled wall.Natural light floods this serene bedroom, highlighting the delicate curtains and golden accents.A cozy secondary living area offers the perfect spot to relax, with black-on-white tones and modern decor.
This spacious Barndominium-style home offers 3,052 square feet of heated living space, featuring 4 bedrooms and 3.5 bathrooms designed for comfort and convenience.
A massive 3,009-square-foot, 3-car garage provides ample room for vehicles, storage, or workshop space—perfect for both everyday living and hobby enthusiasts.
=> Looking for a custom Barndominium floor plan? Click here to fill out our form, a member of our team will be in touch.
💸 80% of Barndo Budgets Blow Up in Planning
Get the $7 tool that helps you avoid delays, overbidding & costly mistakes.
Lisa Young, writer and construction pro, crafts custom homes. Captivated by barndominiums for four years, she shares insights and advice in engaging articles, empowering readers to create unique living spaces mirroring their aspirations. Join her exciting journey exploring barndominium living.
Specifications
Area: 2,486 sq. ft.
Bedrooms: 3
Bathrooms: 2
Stories: 2
Welcome to the gallery of photos for the Expansive Modern Farmhouse House with Split Bedrooms and Vaulted Great...
Specifications
Area: 2,558 sq. ft.
Bedrooms: 4
Bathrooms: 2.5
Stories: 2
Garages: 1-3
Welcome to the gallery of photos for the Barndominium-Style Modern Farmhouse with Massive...