2-Bedroom Two-Story Barndominium House with Two Story Great Room – 1869 Sq Ft (Floor Plan)

13 Shares

Specifications

  • Area: 1,869 sq. ft.
  • Bedrooms: 2
  • Bathrooms: 2
  • Stories: 2
  • Garages: 2

Welcome to the gallery of photos for the Two-Story Barndominium House with Two Story Great Room – 1869 Sq Ft. The floor plans are shown below:

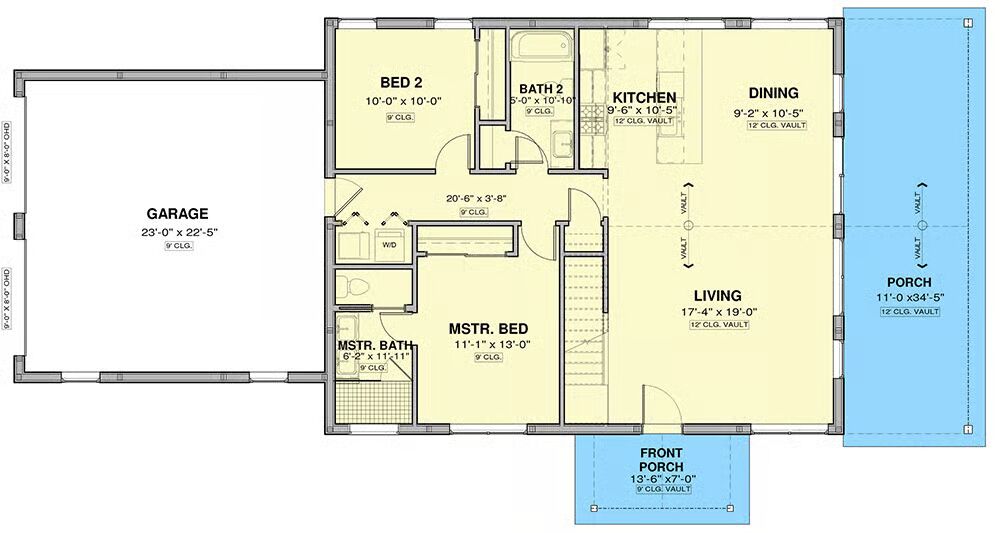
Main level floor plan
Second level floor plan

Buy This Plan

This modern farmhouse gleams in the sunset, blending classic white siding with a striking black metal roof for timeless curb appeal.
A perfect mix of form and function, this home showcases a sleek two-car garage and a welcoming front porch set against a backdrop of natural beauty.
The twin black garage doors make a bold statement, reflecting the golden hour light and hinting at the spacious interior within.
The grand, open-concept design is highlighted by soaring wooden beams and expansive windows that perfectly frame the stunning outdoor scenery.
The kitchen’s light wood cabinetry and sleek, white countertop create a warm, inviting space perfect for cooking and gathering with loved ones.
Natural light floods the main living area, illuminating the sophisticated blend of a cozy dining nook and a comfortable seating area.
An architectural masterpiece, the great room features a cathedral ceiling and a wall of windows that seamlessly merge indoor and outdoor living.
This open-plan layout showcases a striking staircase and a large, airy living space, perfect for entertaining or relaxing.
A cozy loft space upstairs provides an intimate retreat with a low-slung, sloped ceiling and warm lighting, ideal for a media room or lounge.
The second-floor loft overlooks the main living area, offering a flexible and comfortable space with a beautiful view and a chic railing.
Step into comfort and style in this bright bedroom, featuring a cozy bed with modern lighting and a serene view, with an ensuite bathroom just beyond the door.
Discover tranquility in this elegantly designed bedroom, boasting a plush bed, chic wall sconces, and ample closet space for a restful retreat.

Buy This Plan

Discover 1,869 sq. ft. of thoughtfully designed living space in this stylish barndominium plan, offering 2 bedrooms, 2 bathrooms, and a 576 sq. ft. 2-car garage.

Step inside to a welcoming open-concept layout, where a vaulted ceiling crowns the two-story great room, creating an airy, light-filled centerpiece for the home.

The seamless flow between the kitchen, dining, and living areas makes this space ideal for both everyday living and entertaining.

The main-level primary bedroom provides a cozy retreat with easy access to a full bath, while a second bedroom down the hall offers comfort for family or guests.

Upstairs, a versatile loft overlooks the great room, providing flexible space for a home office, media area, or quiet reading nook.

=> Looking for a custom Barndominium floor plan? Click here to fill out our form, a member of our team will be in touch.

💸 80% of Barndo Budgets Blow Up in Planning
Get the $7 tool that helps you avoid delays, overbidding & costly mistakes.
Grab the $7 Planner
13 Shares
See also  Double-Story, 6-Bedroom Barndominium Home With Wraparound Porch (Floor Plans)

Lisa Young

Lisa Young, writer and construction pro, crafts custom homes. Captivated by barndominiums for four years, she shares insights and advice in engaging articles, empowering readers to create unique living spaces mirroring their aspirations. Join her exciting journey exploring barndominium living.

Recent Posts