Specifications
- Area: 896 sq. ft.
- Bedrooms: 2
- Bathrooms: 1
- Stories: 1
- Garages: 2
Welcome to the gallery of photos for the 896 Square Foot Barndominium-Style House. The floor plans are shown below:
















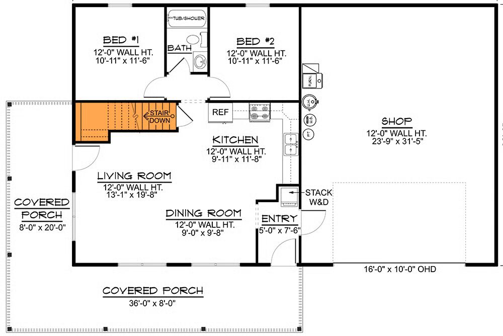
This charming barndominium-style home offers 2 bedrooms, 1 bathroom, and 896 sq. ft. of heated living space, paired with a spacious 768 sq. ft. 2-car garage. Built with conventional wood framing and 2×6 exterior walls, it combines efficiency with durability.
A welcoming 8′-deep wraparound porch provides 448 sq. ft. of covered outdoor living, perfect for relaxing or entertaining. Inside, the enclosed entry leads to an open-concept living, dining, and kitchen area on the left, while direct access to the garage is on the right.
A convenient closet accommodates a stackable washer and dryer.
Two bedrooms are located at the rear of the home, separated by a shared full bath, creating a functional and private layout.
=> Looking for a custom Barndominium floor plan? Click here to fill out our form, a member of our team will be in touch.
