Welcome to the gallery of photos for the Exclusive Craftsman Ranch Home with Barndominium Car Studio. The floor plans are shown below:
Main level floor planSecond level floor planBasement level floor plan
Buy This PlanContemporary country living awaits in this barndominium home, accented by a vibrant red barn and lush, natural surroundings.Large windows and double doors create a seamless connection between the home’s bright, open interior and the natural beauty outside.An open-concept living area with vaulted ceilings and beautiful hardwood floors is ideal for gathering and entertaining.This gourmet kitchen is a perfect example of modern farmhouse design, showcasing a beautiful chandelier and a custom built-in bench.The ultimate chef’s kitchen features dual islands, modern appliances, and crisp white cabinetry under a vaulted ceiling.Floor-to-ceiling glass doors open to a serene screened porch, perfectly extending the living space outdoors.The master bedroom’s vaulted ceilings and large windows flood the space with light and offer a peaceful view of the forest.The spacious, walk-in shower with its beautiful tile work provides a tranquil and luxurious spa-like experience.An elegant clawfoot tub offers a classic and inviting spot for a long, relaxing soak.A bright and airy master bathroom provides a stylish escape with dual sinks and a sleek marble countertop.This functional laundry room features a convenient utility sink and a bold red door for a pop of color.An impressive floor-to-ceiling bookshelf with a built-in wet bar creates a cozy and sophisticated entertainment space.This expansive screened porch with a soaring wood-plank ceiling and cozy fireplace is the ideal spot to take in scenic views.
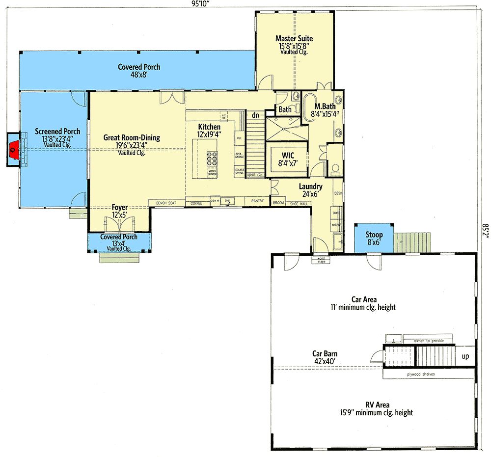
Step inside this Exclusive 3-Bed Craftsman Ranch where French doors welcome you into a soaring vaulted interior. The open layout flows seamlessly into a vaulted screened porch with its own fireplace, perfect for year-round enjoyment.
A spacious 8-foot-deep rear porch expands your outdoor living options with sweeping backyard views.
The vaulted master suite is a private retreat, boasting serene rear-facing views. The chef-inspired kitchen features a large island with ample prep space and casual seating, ideal for both entertaining and daily living.
The finished lower level adds exceptional versatility with two additional bedrooms and a recreation room complete with a wet bar.
Top 5 Mistakes DIY Barndo Builders Make!
Most self-builders lose $10K+ before breaking ground.
Adding to the appeal, the property includes a multi-purpose car barn designed to accommodate standard vehicles as well as RV parking. Upstairs, discover a fully equipped studio suite with a kitchenette and full bath—perfect for guests, extended family, or creative workspace.
This home masterfully combines Craftsman charm with modern functionality, offering comfort, style, and flexibility in every detail.
=> Looking for a custom Barndominium floor plan? Click here to fill out our form, a member of our team will be in touch.
💸 80% of Barndo Budgets Blow Up in Planning
Get the $7 tool that helps you avoid delays, overbidding & costly mistakes.
Lisa Young, writer and construction pro, crafts custom homes. Captivated by barndominiums for four years, she shares insights and advice in engaging articles, empowering readers to create unique living spaces mirroring their aspirations. Join her exciting journey exploring barndominium living.
Specifications
Area: 2,486 sq. ft.
Bedrooms: 3
Bathrooms: 2
Stories: 2
Welcome to the gallery of photos for the Expansive Modern Farmhouse House with Split Bedrooms and Vaulted Great...
Specifications
Area: 2,558 sq. ft.
Bedrooms: 4
Bathrooms: 2.5
Stories: 2
Garages: 1-3
Welcome to the gallery of photos for the Barndominium-Style Modern Farmhouse with Massive...