Specifications
- Area: 2,708 sq. ft.
- Bedrooms: 1
- Bathrooms: 1.5
- Stories: 2
- Garages: 4-5
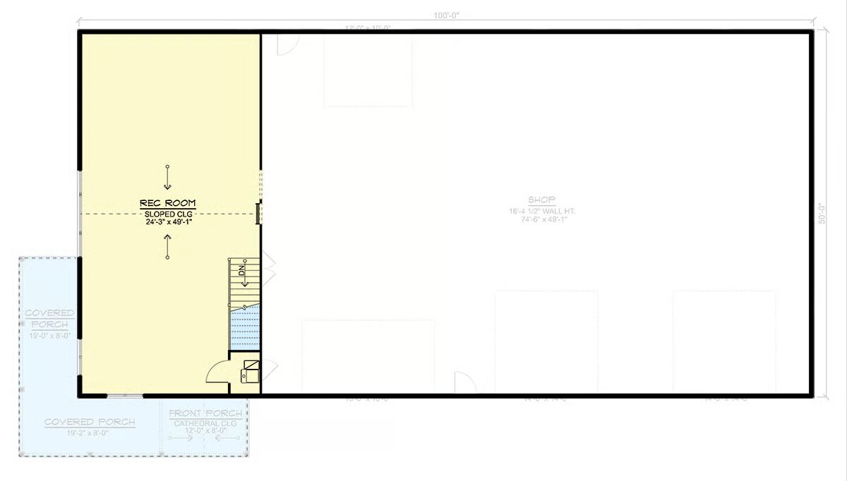
Welcome to the gallery of photos for the Barndominium House with Oversized Workshop – 2708 Sq Ft. The floor plans are shown below:
















Step inside from the inviting wrap-around front porch and discover this thoughtfully designed 1-bedroom, open-concept barndominium home. Built with durable 2×6 exterior wall framing, this plan combines rustic appeal with modern functionality.
The spacious kitchen features a central island and corner pantry, flowing seamlessly into the dining area and bright living room.
A convenient mudroom with laundry and a half bath connects directly to the impressive 3,750 sq. ft. oversized garage and workshop—perfect for hobbyists, RV storage, or car enthusiasts.
Tucked privately at the back of the home, the master suite offers a serene retreat with an ensuite bath and generous walk-in closet. Upstairs, a vaulted rec room provides endless possibilities for entertaining, gaming, or a flexible loft-style living space.
=> Looking for a custom Barndominium floor plan? Click here to fill out our form, a member of our team will be in touch.
