Two-Story Barndominium House with Wrap Around Porch and Finished Apartment – 3395 Sq Ft (Floor Plan)

129 Shares

Specifications

  • Area: 3,395 sq. ft.
  • Bedrooms: 4
  • Bathrooms: 3.5
  • Stories: 2
  • Garages: 3

Welcome to the gallery of photos for the Two-Story Barndominium House with Wrap Around Porch and Finished Apartment – 3395 Sq Ft. The floor plans are shown below:

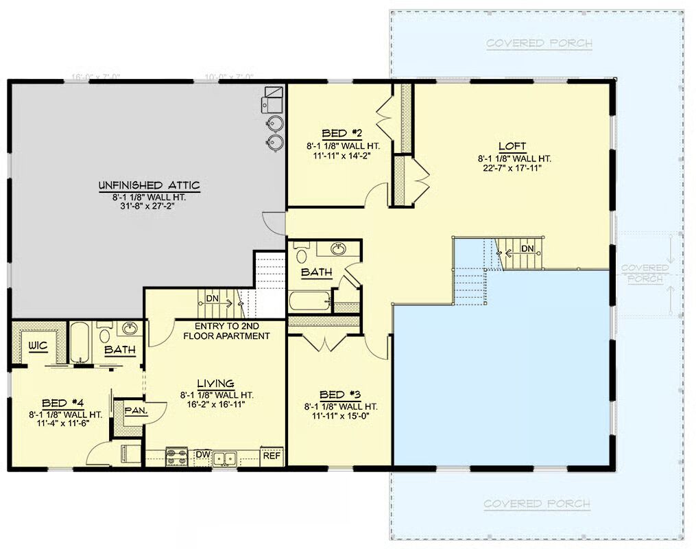
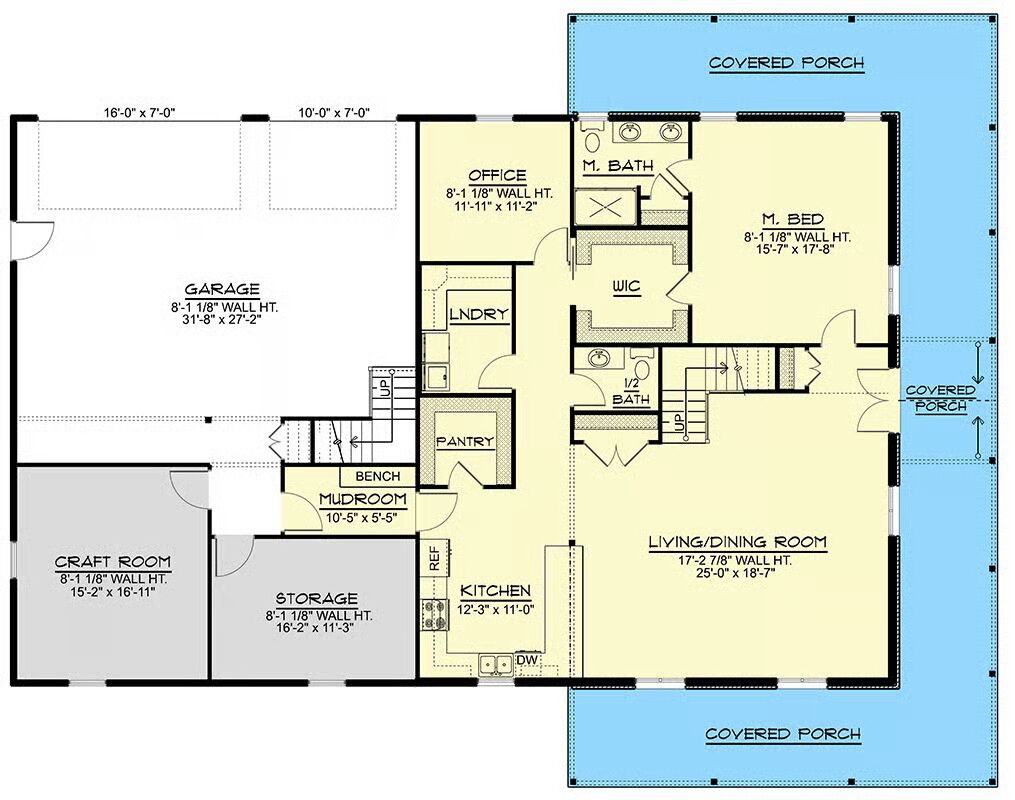
Main level floor plan
Second level floor plan

Buy This Plan

This impressive barndominium combines a classic farmhouse look with modern functionality, complete with a sweeping front porch.
With its striking black and white facade, this barndominium offers a sleek design and convenient double garage doors.
The side view of this barndominium highlights its extended layout and cozy side entrance, perfect for family and friends.
An inviting and expansive covered porch wraps around this home, providing the ideal spot for outdoor relaxation.
The symmetrical front of this barndominium creates a bold, welcoming statement with its contrasting colors and central double doors.
A charming porch swing and stone accents welcome you to this stylish barndominium, blending rustic and modern elements seamlessly.
Enjoy a bright and airy dining area with a high ceiling and a modern chandelier, creating the perfect space for gathering.
A stunning kitchen shines with dark cabinetry, elegant marble backsplashes, and a casual bar, blending luxury with everyday living.
The modern kitchen island with its sleek bar seating invites you to a casual and chic space for morning coffee or entertaining guests.
The open-concept living area features a dramatic staircase and a seamless flow from the living room to the dining and kitchen spaces.
Soaring ceilings and large windows fill this open living area with light, creating a grand yet comfortable space.
A modern staircase with clean lines leads to a spacious loft, connecting the home’s levels with contemporary style.
This cozy living room features a classic leather armchair and a sleek media console, perfect for relaxing after a long day.
The upstairs loft offers a bright and versatile bonus room, complete with a comfy sofa and a gallery wall.
An elegant mix of modern and traditional design elements, this space is both stylish and incredibly livable.
The primary bedroom is a peaceful retreat with natural wood nightstands, a striking headboard, and a serene color palette.
A minimalist bedroom design creates a tranquil sanctuary with crisp white bedding and warm, natural textures.
This modern bathroom combines a clean white vanity and vessel sinks with a streamlined glass shower enclosure.
The vanity area features a double sink and intricate, ornate mirrors, adding a touch of classic elegance to a modern bathroom.

Buy This Plan

This Barndominium-style home offers 3,395 square feet of heated living space, showcasing 4 bedrooms and 3.5 bathrooms.

A spacious 959-square-foot 3-car garage provides ample room for vehicles, storage, or a workshop, making this plan a perfect blend of comfort, functionality, and modern barndominium charm.

=> Looking for a custom Barndominium floor plan? Click here to fill out our form, a member of our team will be in touch.

💸 80% of Barndo Budgets Blow Up in Planning
Get the $7 tool that helps you avoid delays, overbidding & costly mistakes.
Grab the $7 Planner
129 Shares
See also  4-Bedroom Modern Barndominium with Wrap-Around Porch, Outdoor Kitchen (Floor Plan)

Lisa Young

Lisa Young, writer and construction pro, crafts custom homes. Captivated by barndominiums for four years, she shares insights and advice in engaging articles, empowering readers to create unique living spaces mirroring their aspirations. Join her exciting journey exploring barndominium living.

Recent Posts