Specifications
- Area: 2,039 sq. ft.
- Bedrooms: 3
- Bathrooms: 2
- Stories: 1
- Garages: 3
Welcome to the gallery of photos for a single-story, three-bedroom Farmhouse-Inspired Barndominium with a Wraparound Porch. The floor plans are shown below:
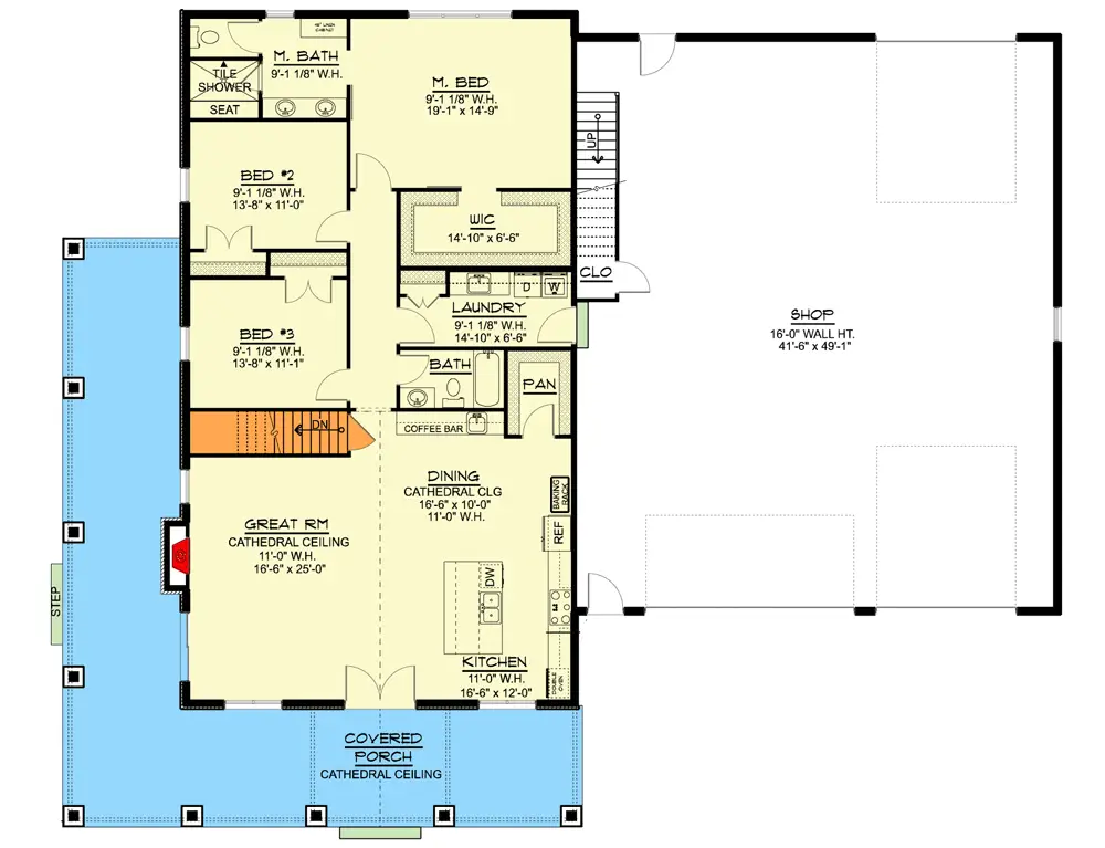
Main Floor Plan
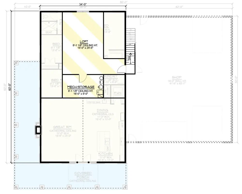
Optionally Finished Bonus Plan
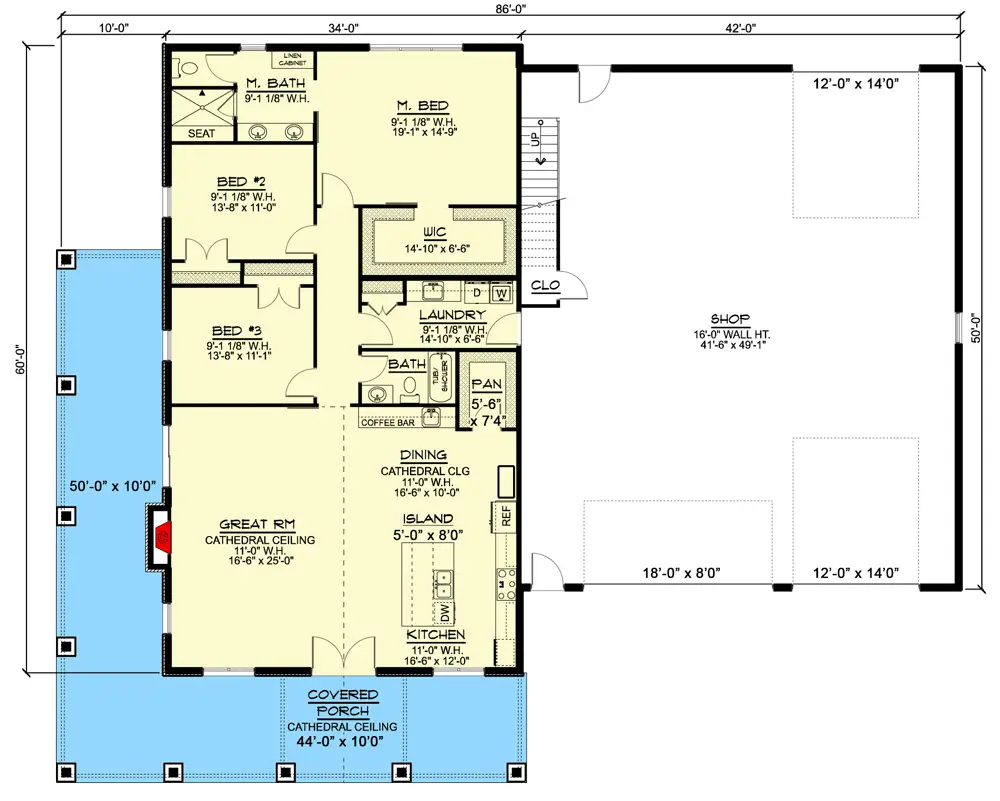
Main Level – Basement Foundation Plan
The front exterior of this Barndominium, inspired by a Farmhouse design, showcases a charming wraparound porch with wooden columns and sturdy rock pillars.
The spacious garage features sleek black side panels and is accompanied by a concrete driveway.
This picturesque covered porch captures a delightful angle view, with sturdy wooden columns and elegant rock pillars.
This is a rear view of the Farmhouse-style Barndominium, featuring a spacious wraparound porch that wraps around the entire structure, offering a picturesque view from the back.
Buy This Plan
Indulge in the harmonious amalgamation of rustic charm and contemporary elegance embodied in this Barndominium, profoundly inspired by the timeless aesthetics of Farmhouse design.
Every element, every detail, is meticulously crafted to offer not just a dwelling but an experience of living amidst architectural artistry enveloped in comfort.
To the right, the allure of a spacious garage/workshop unveils itself, generously spanning 2,123 square feet. It’s a sanctum not just for vehicles but a canvas for creativity, innovation, and the nurturing of hobbies.
Front and rear overhead doors ensure convenience, embodying a design philosophy where every detail is tailored for ease and accessibility.
Within this expansive space, a staircase ascends gracefully, leading to a loft poised on the second level. This versatile space, overlooking the garage below, offers a serene environment, ideal as an office or a spacious storage area, epitomizing functional elegance.
As you traverse towards the front of this architectural masterpiece, a wraparound porch extends a warm embrace. It’s a pathway adorned with the gentle touch of nature and the subtle elegance of architectural design.
French doors stand as sentinels at the main entrance, opening up to a world where rustic charm meets modern opulence.
Stepping inside, you are welcomed into a realm where spaces flow seamlessly, where the great room, kitchen, and dining area converge in a dance of aesthetic and functional harmony.
The kitchen, a bastion of culinary artistry, is graced by a 5′ by 8′ island and an elegantly designed coffee bar, ensuring every culinary adventure is a shared experience of delight.
Adjacent, the dining area stands as a testament to architectural grandeur, adorned with a fireplace that adds a touch of cozy elegance and a cathedral ceiling that ascends, amplifying the aura of spaciousness.
To the left, a corridor of comfort unveils two spacious bedrooms, each a sanctuary of rest, echoing the home’s commitment to spacious elegance.
Across the hall, a full bath stands ready to rejuvenate, adjacent to a laundry room that epitomizes functional design, with a door offering direct access to the garage, ensuring convenience is woven into every detail.
Nestled at the rear, the master bedroom is a world unto itself. Tucked away to ensure privacy, it’s a retreat where tranquility reigns.
An adjoining 4-fixture bathroom, complete with a linen closet, promises indulgence, while a walk-in closet ensures every attire and accessory finds a home amidst ample storage.
The exterior narrative of this Barndominium is written in the language of corrugated metal siding. It’s not just a finish but an expression of uniqueness, adding to the structure’s distinct appeal, where the rustic charm of a farmhouse converges with the sleek elegance of contemporary design.
Every square foot, every detail, is a testament to a living experience where the past’s architectural nostalgia meets the present’s functional opulence, ensuring that every moment within these walls is a sojourn into luxury, comfort, and aesthetic splendor.
Source: Plan 135072GRA
=> Looking for a custom Barndominium floor plan? Click here to fill out our form, a member of our team will be in touch.

