Specifications
- Area: 4,013 sq. ft.
- Bedrooms: 4-5
- Bathrooms: 3.5+
- Stories: 2
- Garages: 3-4
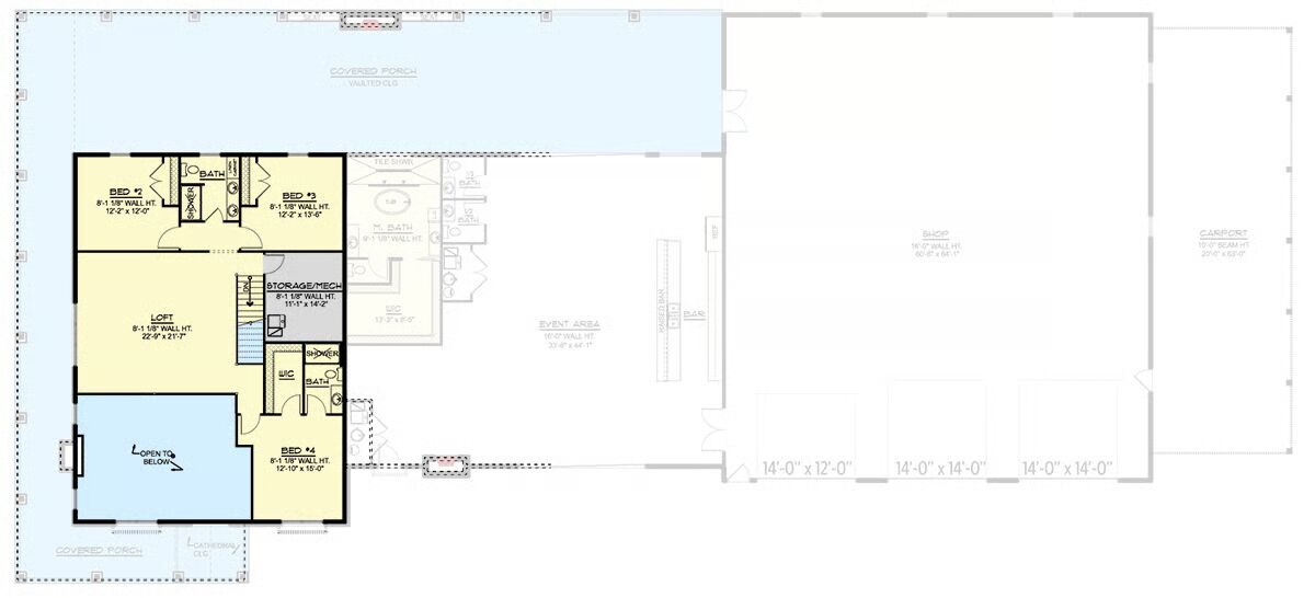
Welcome to the gallery of photos for the Barndominium with Two-Story Great Room and Event Space – 4013 Sq Ft. The floor plans are shown below:









This 4-bedroom, 3-bath Barndominium-style home offers an extraordinary blend of comfort, functionality, and entertainment potential. With 4,013 sq. ft. of heated living space, this residence provides room for the whole family to spread out in style.
A dedicated 2,092 sq. ft. event space is seamlessly attached to the home, making it ideal for gatherings, celebrations, or even business use.
Car enthusiasts, hobbyists, or those needing substantial storage will love the 3-car workshop garage, spanning an impressive 4,103 sq. ft.
This home is designed to combine modern living with practical amenities, creating the ultimate balance of residential comfort and versatile utility.
=> Looking for a custom Barndominium floor plan? Click here to fill out our form, a member of our team will be in touch.
