Modern Farmhouse with 4-Car RV Garage and Expansive Deck (Floor Plan)

0 Shares

Specifications

  • Area: 2,291 sq. ft.
  • Bedrooms: 3
  • Bathrooms: 1
  • Stories: 0
  • Garages: 4

Welcome to the gallery of photos for the Modern Farmhouse with 4-Car RV Garage and Expansive Deck. The floor plans are shown below:

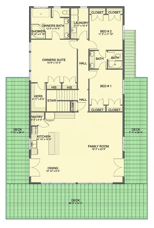
Main level floor plan
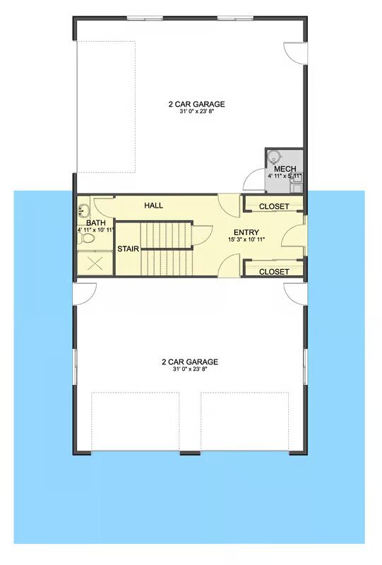
Second level floor plan

Buy This Plan

A welcoming front elevation featuring an attached oversized garage and a covered patio area below the deck.
A lovely front angle showcasing the elevated living area, wrap-around deck, and convenient ground-level entrances.
The front view highlights the classic metal roof, a wide second-level deck, and striking garage doors beneath a massive triangular window.
This impressive barndominium-style home features a prominent dual garage and a huge second-story deck perfect for outdoor entertaining.
The backyard perspective reveals a secure fenced area and the essential staircase leading to the spacious upper deck.
This side view emphasizes the home’s broad footprint, large lower-level garage, and private outdoor space with a fence.
An overview of the open floor plan shows a seamless connection between the stylish green kitchen, dining space, and comfortable living area.
The living room is cozy yet spacious, featuring a warm sectional sofa and a contemporary gold coffee table against a large white area rug.
A grand view of the living and dining space, anchored by a comfortable brown sofa and a breathtaking, floor-to-ceiling triangular window.
This bright, open space features the kitchen and dining area, drawing attention to the striking vaulted ceiling and large windows.
The modern kitchen shines with bold hunter-green cabinetry and a contrasting dark granite island, all beneath a vaulted ceiling.

Buy This Plan

This 2,291 sq. ft. modern farmhouse masterfully combines comfort, functionality, and contemporary design, offering 3 bedrooms, 3 full bathrooms, and an expansive 1,549 sq. ft. 4-car RV garage—perfect for car enthusiasts or those needing generous storage space.

The main-level entry welcomes you with a practical foyer that connects directly to the spacious garage, a full bathroom, and a convenient mudroom-style area, ideal for organizing daily essentials.

Upstairs, the open-concept living space unites the family room, dining area, and gourmet kitchen, creating a seamless environment for entertaining and everyday living.

The kitchen impresses with a large center island, butler’s walk-in pantry, and direct access to an expansive deck, inviting natural light and outdoor connection.

Top 5 Mistakes DIY Barndo Builders Make!
Most self-builders lose $10K+ before breaking ground.
Grab the Planner

The owner’s suite offers a private retreat featuring a spacious bedroom, dual walk-in closets, and a spa-inspired bath with double vanities and a luxurious shower.

Two additional bedrooms are located on the opposite side of the home, connected by a Jack & Jill bathroom, ensuring both comfort and privacy for family or guests.

A second-floor laundry room adds convenience, while the highlight of the home—the 1,172 sq. ft. wrap-around deck—extends the living space outdoors, offering the perfect setting for al fresco dining, gatherings, or quiet relaxation surrounded by serene views.

=> Looking for a custom Barndominium floor plan? Click here to fill out our form, a member of our team will be in touch.

See also  3-Bedroom Barndominium with Open-Concept Living Space and Flex Room - 1970 Sq Ft (Floor Plan)
đź’¸ 80% of Barndo Budgets Blow Up in Planning
Get the $7 tool that helps you avoid delays, overbidding & costly mistakes.
Grab the $7 Planner
0 Shares

Lisa Young

Lisa Young, writer and construction pro, crafts custom homes. Captivated by barndominiums for four years, she shares insights and advice in engaging articles, empowering readers to create unique living spaces mirroring their aspirations. Join her exciting journey exploring barndominium living.

Recent Posts