Barndominium House with Oversized Garage – 2882 Sq Ft (Floor Plan)

0 Shares

Specifications

  • Area: 2,882 sq. ft.
  • Bedrooms: 2-3
  • Bathrooms: 2.5
  • Stories: 2
  • Garages: 3-6

Welcome to the gallery of photos for the Barndominium House with Oversized Garage – 2882 Sq Ft. The floor plans are shown below:

Buy This Plan

The sleek black barndominium features a contrasting natural wood porch and garage doors, set against a dramatic sky.
This striking blue barndominium offers three large wooden garage doors and a charming covered entryway.
A handsome blue barndominium combines a bright window wall with extensive vehicle storage access.
The gray metal barndominium features an inviting full-length covered porch, a stone patio, and upper-level windows.
The simple, soaring side of the barndominium features a large wooden main entry door and minimal accent windows.
The blue barndominium’s expansive, shaded porch provides the perfect outdoor lounge area with privacy from the roadside
The serene backyard includes a tiered water feature and a stone patio with a separate dining pergola.
A bright living room features a modular, oversized linen sectional and a rustic wooden trunk serving as a coffee table.
This rustic farmhouse kitchen corner showcases a dramatic stone wall, open shelving, and a brass faucet over a sink.
The modern farmhouse kitchen is defined by light wood cabinetry, a marble backsplash, and a central island with simple pendants.
This sunlit dining room features white plank walls, a rustic dining set, and a woven console with framed artwork.
The open-concept great room connects a cozy white sectional living area with a minimalist dining space and console.
A compact living space features a plush white sofa, contrasting dark cabinetry in the kitchen, and a navy island with bar seating.
The bedroom is brightened by large windows and features a modern curved bed against a backdrop of geometric art.
This industrial-rustic kitchen combines dark gray cabinets, wood countertops, and open shelving over a stone accent wall.
A contemporary home music studio features a sleek desk setup and a dramatic display wall of guitars.

Buy This Plan

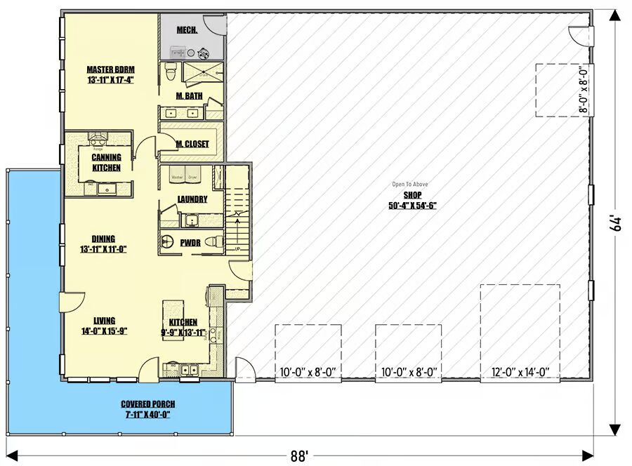
Experience the perfect blend of rustic charm and modern comfort in this expansive 2,882 sq. ft. barndominium, thoughtfully designed with 3 bedrooms, 2.5 bathrooms, and an impressive 979 sq. ft. attached garage accommodating up to three vehicles.

Step into a warm and inviting open-concept living space where the cozy living room flows effortlessly into a stylish, well-equipped kitchen and spacious dining area—an ideal layout for both relaxed daily living and effortless entertaining.

A versatile flex room and a convenient mudroom enhance the home’s functionality, offering extra space for work, hobbies, and day-to-day organization.

The main-level primary suite serves as a private retreat with its own luxurious bath and a generous walk-in closet. Upstairs, two additional bedrooms provide comfort and privacy for family or guests.

Thoughtfully designed extras include a dedicated canning kitchen on the main floor and a generous loft space perfect for storage, recreation, or future expansion.

Top 5 Mistakes DIY Barndo Builders Make!
Most self-builders lose $10K+ before breaking ground.
Grab the Planner

Outside, a charming wrap-around porch offers sweeping views and the perfect setting for relaxing mornings, evening gatherings, or simply taking in the beauty of your surroundings.

This barndominium combines spacious living, flexibility, and timeless style—ideal for those seeking a unique and functional home.

=> Looking for a custom Barndominium floor plan? Click here to fill out our form, a member of our team will be in touch.

See also  3-Bedroom RV-Friendly Barndo-Style House Under 3100 Square Feet (Floor Plan)
đź’¸ 80% of Barndo Budgets Blow Up in Planning
Get the $7 tool that helps you avoid delays, overbidding & costly mistakes.
Grab the $7 Planner
0 Shares

Lisa Young

Lisa Young, writer and construction pro, crafts custom homes. Captivated by barndominiums for four years, she shares insights and advice in engaging articles, empowering readers to create unique living spaces mirroring their aspirations. Join her exciting journey exploring barndominium living.

Recent Posts