Country Barndominium House with Upstairs Home Office – 2089 Sq Ft (Floor Plan)

8 Shares

Specifications

  • Area: 2,089 sq. ft.
  • Bedrooms: 2-3
  • Bathrooms: 2.5
  • Stories: 2
  • Garages: 2

Welcome to the gallery of photos for the Country Barndominium House with Upstairs Home Office – 2089 Sq Ft. The floor plans are shown below:

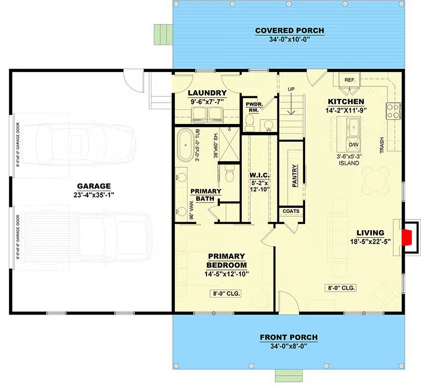
Main level floor plan
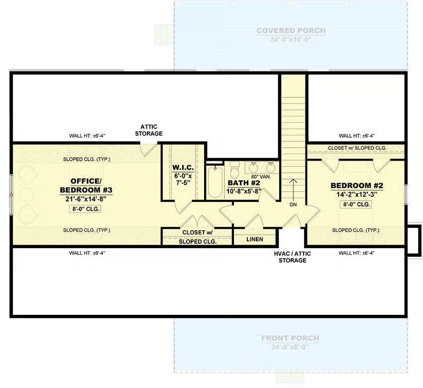
Second level floor plan

Buy This Plan

This charming farmhouse welcomes you with a classic front porch and stunning mountain views, perfect for peaceful living.
Enjoy lazy afternoons on the inviting front porch, with a stylish swing and rocking chairs creating the ultimate relaxation spot.
A spacious two-car garage complements the home’s striking dark siding and A-frame roofline, blending modern function with rustic appeal.
This open-concept living and dining area is the perfect blend of cozy and chic, centered around a stunning fireplace and flooded with natural light.
An immaculate white kitchen with a sleek marble island and warm brass accents creates a bright, elegant space for culinary creativity.
The main bedroom is a tranquil retreat featuring a modern barn door and serene, neutral tones for a restful escape.

Buy This Plan

This barndominium-style home, built with conventional wood framing and 2×6 exterior walls, offers 2,089 sq. ft. of heated living space with the flexibility of 2 to 3 bedrooms and 2.5 bathrooms.

An oversized 858 sq. ft. 2-car garage provides ample room for vehicles, storage, or a workshop, while the thoughtfully designed floor plan combines comfort, versatility, and modern barn-inspired charm.

=> Looking for a custom Barndominium floor plan? Click here to fill out our form, a member of our team will be in touch.

💸 80% of Barndo Budgets Blow Up in Planning
Get the $7 tool that helps you avoid delays, overbidding & costly mistakes.
Grab the $7 Planner
8 Shares
See also  Barndominium with Optionally-Finished Lower Level and Drive-Through RV Garage - 2962 Sq Ft (Floor Plan)

Lisa Young

Lisa Young, writer and construction pro, crafts custom homes. Captivated by barndominiums for four years, she shares insights and advice in engaging articles, empowering readers to create unique living spaces mirroring their aspirations. Join her exciting journey exploring barndominium living.

Recent Posts