Specifications
- Area: 2,534 sq. ft.
- Bedrooms: 2-3
- Bathrooms: 2
- Stories: 2
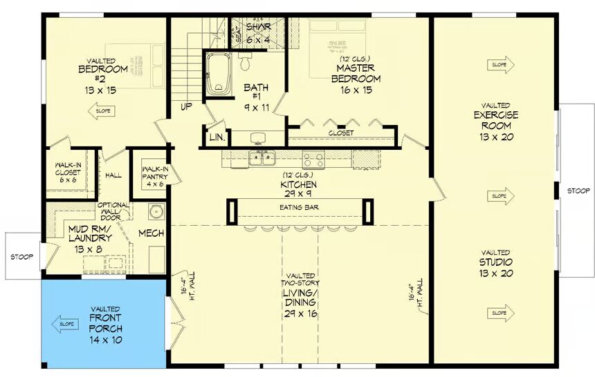
Welcome to the gallery of photos for the Barndominium with Vaulted Living Room and Loft. The floor plans are shown below:







This barndominium-style home perfectly blends rustic charm with modern design, showcasing a classic gable and shed-style roof accented by barn door shutters that elevate its timeless country appeal.
Through double entry doors, you’re welcomed into an expansive open-concept living area where the kitchen, dining, and great room flow seamlessly together beneath vaulted ceilings that create an airy, inviting atmosphere.
The kitchen island, seating up to seven, serves as a stunning focal point for gatherings and casual meals.
The primary suite, tucked behind the kitchen, offers privacy and luxury with a 4-fixture bath featuring a separate tub and shower. An exercise room/studio combo on the right wing provides versatility and opens to the outdoors through dual sliding doors.
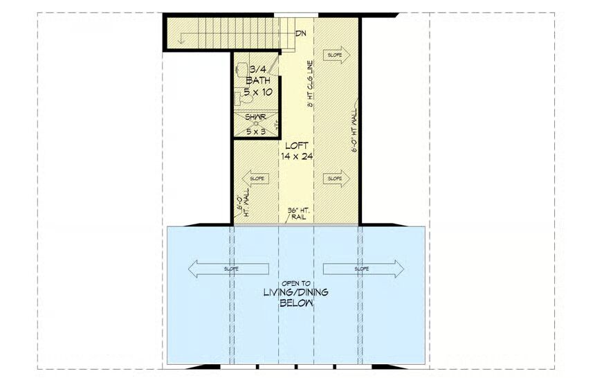
A secondary bedroom completes the main level, while upstairs, a loft with a ¾ bath overlooks the great room below—perfect for a guest suite, office, or creative retreat.
Designed for both comfort and character, this barndominium captures the essence of modern country living.
=> Looking for a custom Barndominium floor plan? Click here to fill out our form, a member of our team will be in touch.
