3-Bedroom 1-Story Barndominium-Style House with Front and Side Porches – 1983 Sq Ft (Floor Plan)

17 Shares

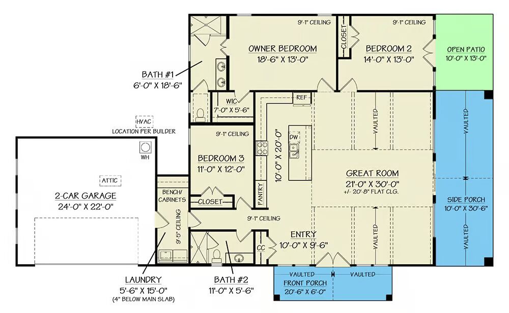
Specifications

  • Area: 1,983 sq. ft.
  • Bedrooms: 3
  • Bathrooms: 2
  • Stories: 1
  • Garages: 2

Welcome to the gallery of photos for the 1-Story Barndominium-Style House with Front and Side Porches – 1983 Sq Ft. The floor plan is shown below:

Buy This Plan

This striking barndominium features a bold dark metal roof contrasting with crisp white siding and a dramatic gabled entrance.
A handsome daytime view highlights the farmhouse-modern appeal with exposed wood beams on the covered porch.
The grand a-frame gable of this home creates an impressive, welcoming entryway framed by natural wood and lush landscaping.
The modern silhouette of the barndominium is complemented by a wide driveway leading to the integrated two-car garage.
A clean side view showcases the home’s long, modern profile with vertical white siding and a simple aesthetic.
Sunset lights illuminate the charming covered entryway and well-manicured lawn of this modern farmhouse.
Evening ambiance highlights the chic black-on-white palette of the home and the inviting glow from the interior.
Golden hour captures the textural contrast of the sleek metal roof against the warmth of the wood framing.
The back of the house opens up to a luxurious patio and pool area, perfect for outdoor entertaining.
Floor-to-ceiling windows on the back gable connect the stunning vaulted living space to the poolside deck.
This twilight view emphasizes the home’s grand scale and the cozy, well-lit entrance set against a vibrant sky.
A vaulted dining room features a rustic wooden table, woven chairs, and a striking geometric black chandelier.
The bright, airy living room showcases a high wood-plank ceiling and a comfortable modern sectional, flooded with natural light.
This spacious kitchen combines light wood cabinetry with a contrasting white and dark blue island and bold white pendants.
A closer look at the kitchen reveals a sleek marble backsplash and a waterfall-edge island with built-in bar seating.
The tranquil primary bedroom boasts a tufted wingback bed, warm wood nightstands, and a sophisticated black-and-white color scheme.
The bathroom is a luxury retreat with a gold-framed mirror, brass fixtures, and a glass-enclosed walk-in shower.

Buy This Plan

This inviting single-story Barndominium-style home offers 1,973 square feet of thoughtfully designed living space, featuring 3 bedrooms and 2 full bathrooms.

Crafted with conventionally framed exterior walls, this plan combines the durability of modern construction with the rustic charm of barndominium design.

Inside, an open-concept layout seamlessly connects the main living areas, creating an ideal flow for everyday living and entertaining.

Perfect for families or those seeking single-level convenience, this home blends functionality, comfort, and timeless style in one beautifully efficient design.

=> Looking for a custom Barndominium floor plan? Click here to fill out our form, a member of our team will be in touch.

💸 80% of Barndo Budgets Blow Up in Planning
Get the $7 tool that helps you avoid delays, overbidding & costly mistakes.
Grab the $7 Planner
17 Shares
See also  4-5 Bedroom Barndominium House with Wrap-Around Porch - 3052 Sq Ft (Floor Plan)

Lisa Young

Lisa Young, writer and construction pro, crafts custom homes. Captivated by barndominiums for four years, she shares insights and advice in engaging articles, empowering readers to create unique living spaces mirroring their aspirations. Join her exciting journey exploring barndominium living.

Recent Posts