Specifications
- Area: 2,962 sq. ft.
- Bedrooms: 3-4
- Bathrooms: 2.5+-3.5+
- Stories: 2
- Garages: 5
Welcome to the gallery of photos for the Barndominium with Optionally-Finished Lower Level and Drive-Through RV Garage – 2962 Sq Ft. The floor plans are shown below:



Buy This Plan






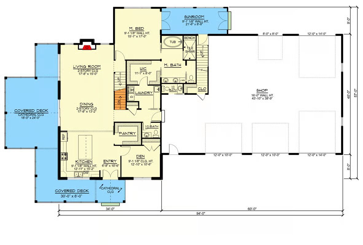
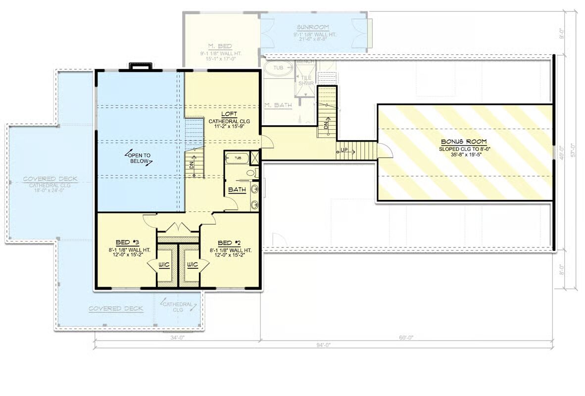
This barndominium-style home offers 2,887 square feet of heated living space with 3 bedrooms, 2.5 bathrooms, and the option to add a fourth bedroom and full bath by finishing the lower level. Designed with 2×6 exterior walls, it blends rustic charm with modern functionality.
The main level features a seamless open flow, highlighted by a chef’s kitchen with a walk-in pantry, a sunroom, and a retractable glass door that extends the living space to a covered deck.
The private main-level primary suite includes direct access from the walk-in closet to the laundry room, while a quiet den off the entry provides flexibility for work or relaxation.
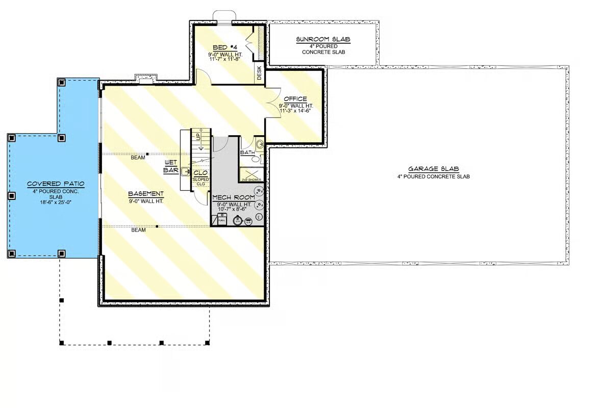
Upstairs, two bedrooms share a loft and a compartmentalized bath. The finished bonus room above the garage offers additional living space, while the lower level expands with a spacious rec room complete with wet bar, home office, covered patio, and optional fourth bedroom.
Car enthusiasts and hobbyists will love the 2,280 sq. ft. garage, featuring front and rear overhead doors for drive-through access and ample room for a workshop or storage.
=> Looking for a custom Barndominium floor plan? Click here to fill out our form, a member of our team will be in touch.
