Barndominium House with Wrap-Around Porch – 1888 Sq Ft (Floor Plan)

2 Shares

Specifications

  • Area: 1,888 sq. ft.
  • Bedrooms: 2-3
  • Bathrooms: 2-3
  • Stories: 1
  • Garages: 3

Welcome to the gallery of photos for the Barndominium House with Wrap-Around Porch – 1888 Sq Ft. The floor plans are shown below:

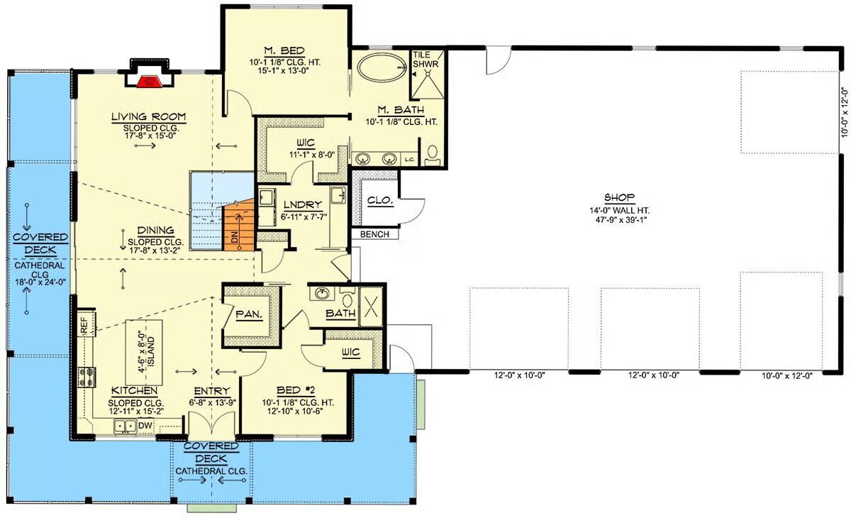
Main floor plan
Basement floor plan

Buy This Plan

This modern barndominium features a spacious covered porch and a three-car garage with mountain views.
Stunning single-story barndominium with rustic stone accents and expansive outdoor living space.
Classic barndominium exterior showcasing modern amenities with traditional farmhouse appeal.
Here’s a spectacular rear view of the barndominium showcasing the walkout basement and expansive covered deck overlooking rolling hills.
Impressive barndominium rear elevation with natural stone foundation and multi-level outdoor living spaces.
Impressive barndominium rear elevation with natural stone foundation and multi-level outdoor living spaces.
The luxurious kitchen features white quartz countertops, natural wood cabinetry, and modern brass fixtures.
Sophisticated living room with a white brick fireplace and mid-century modern furniture.
Open-concept living space showing the great room and dining room.
The house’s dining space has natural wood furnishings, an open staircase design, and abundant natural light.
Serene barndominium master bedroom featuring brass pendant lighting, natural wood nightstands, and peaceful countryside views.
Adorable master bedroom featuring warm wood tones, luxury linens, and dramatic black accents.
This barndominium home also has additional bedrooms for comfort and convenience.
The double-vanity master bathroom includes open shelf styling, geometric wall tile, and warm brass accents.
The master bathroom also has a bathtub, enclosed shower, and toilet areas.
The lower-level family room has soaring ceilings, a black metal staircase, and seamless indoor-outdoor access.

Buy This Plan

This barndominium house plan delivers 1,888 sq. ft. of heated living space with a flexible layout offering 2–3 bedrooms and 2–3 bathrooms.

Designed with conventional wood framing and sturdy 2×6 exterior walls, it combines durability with modern comfort.

A 2,174 sq. ft. 3-car garage provides exceptional space for vehicles, storage, or workshop needs—perfect for hobbyists and car enthusiasts alike.

=> Looking for a custom Barndominium floor plan? Click here to fill out our form, a member of our team will be in touch.

đź’¸ 80% of Barndo Budgets Blow Up in Planning
Get the $7 tool that helps you avoid delays, overbidding & costly mistakes.
Grab the $7 Planner
2 Shares
See also  5-Bedroom Expanded Farmhouse-Inspired Barndominium-Style House with Guest Apartment (Floor Plan)

Lisa Young

Lisa Young, writer and construction pro, crafts custom homes. Captivated by barndominiums for four years, she shares insights and advice in engaging articles, empowering readers to create unique living spaces mirroring their aspirations. Join her exciting journey exploring barndominium living.

Recent Posts