Specifications
- Area: 6,374 sq. ft.
- Bedrooms: 6
- Bathrooms: 4.5+
- Stories: 2
- Garages: 4
Welcome to the gallery of photos for the Barndominium House with Dual In-Law Apartments – 6374 Sq Ft. The floor plans are shown below:










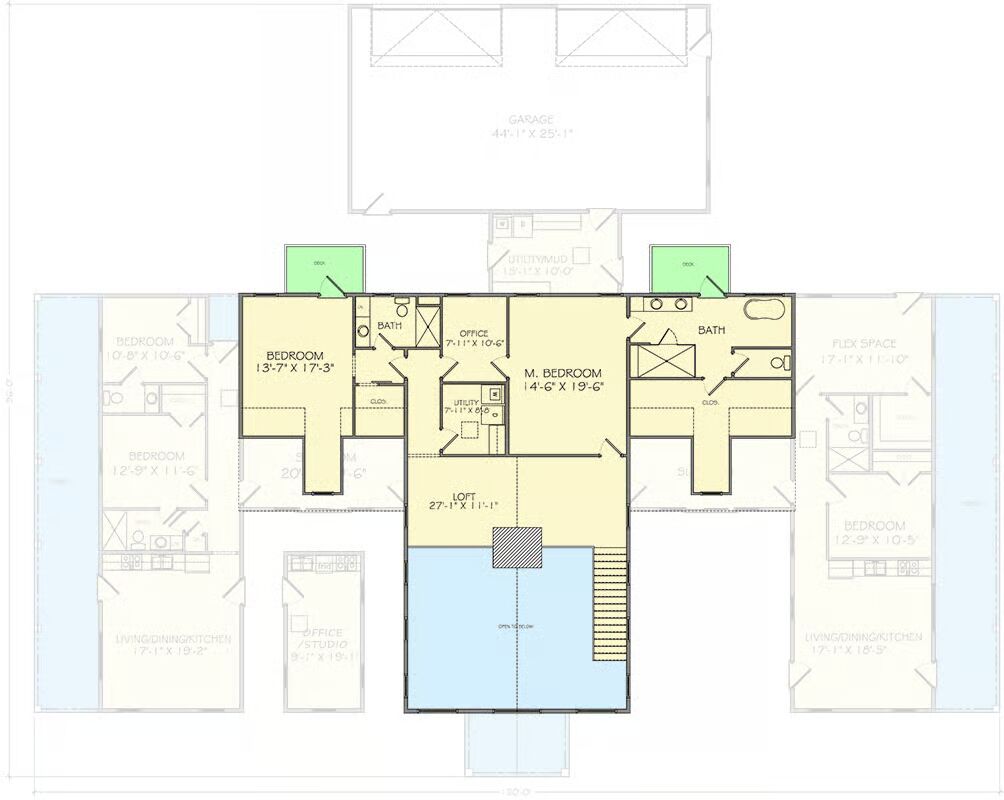
This remarkable 6-bedroom, 4 full bath, 4 half bath barndominium home blends comfort, flexibility, and modern farmhouse charm.
A rear-entry 4-car garage anchors the design, while sprawling living spaces and thoughtful details make this home perfect for large families or multi-generational living.
The main level opens to a grand great room with a dual-sided fireplace, seamlessly connecting to the dining area. At the rear, the gourmet kitchen is designed for convenience, featuring an oversized walk-in pantry that doubles as a safe room.
A large mudroom/laundry combo provides direct access to the garage.
On either side of the home, you’ll find mirrored in-law or guest suites. Each private wing includes 2 bedrooms, a shared full bath, a half bath in the secondary bedroom/flex space, a spacious great room with kitchenette, and a dedicated laundry.
Expansive covered porches run the full length of both wings, offering outdoor living and relaxation.
A detached studio with kitchenette adds even more versatility—ideal as a home office, workshop, art studio, garden shed, or private retreat.
Upstairs, a large loft overlooks the living room below, leading to the 6th bedroom and a luxurious master suite. The master retreat boasts an attached office, a spa-inspired 5-fixture bath, and a generous walk-in closet.
With its flexible layout, abundant storage, and private guest quarters, this home delivers the ultimate blend of functionality and modern barndominium style.
=> Looking for a custom Barndominium floor plan? Click here to fill out our form, a member of our team will be in touch.
