Specifications
- Area: 3,163 sq. ft.
- Bedrooms: 5
- Bathrooms: 4.5
- Stories: 2
- Garages: 2
Welcome to the gallery of photos for the Modern Barndominium House with Wrap-Around Porch. The floor plans are shown below:


Buy This Plan





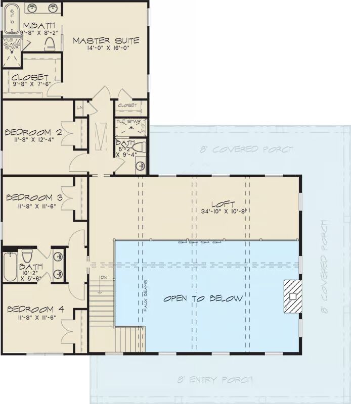
This stunning modern barndominium-style home combines rustic charm with contemporary elegance, offering 3,163 sq. ft. of living space with 5 bedrooms, 4.5 baths, and a 625 sq. ft. rear-entry two-car garage.
A welcoming wraparound porch leads into a dramatic two-story great room, where soaring ceilings and an open layout create an airy, inviting atmosphere.
The seamless flow between the great room, dining area, and gourmet kitchen—complete with a central island and butler’s walk-in pantry—makes this home ideal for entertaining and everyday comfort.
Upstairs, the luxurious master suite offers a peaceful retreat, while the four additional bedrooms provide ample space for family and guests, including a main-level guest suite and three secondary bedrooms connected by a Jack-and-Jill bath.
A versatile loft overlooking the great room adds space for a reading nook or home office, while the mudroom and laundry room near the garage entry ensure everyday convenience.
Enjoy outdoor living at its finest on the expansive 851 sq. ft. wraparound porch, perfect for morning coffee, evening gatherings, or relaxing in the beauty of your surroundings.
=> Looking for a custom Barndominium floor plan? Click here to fill out our form, a member of our team will be in touch.
