Specifications
- Area: 3,265 sq. ft.
- Bedrooms: 5
- Bathrooms: 3.5
- Stories: 1
- Garages: 2
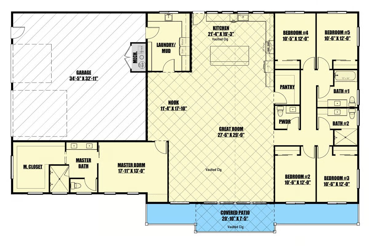
Welcome to the gallery of photos for the ADA Accessible Barndominium Style House with RV Garage Bay. The floor plan is shown below:














This barndominium-style house plan delivers 3,265 square feet of heated living space with a thoughtful, accessible design throughout, including 36″ doors for full ADA compliance.
A 1,173 sq. ft. garage offers incredible flexibility with a dedicated RV bay alongside a separate 2-car bay, perfect for storage, hobbies, or travel-ready living.
At the heart of the home, a vaulted great room welcomes abundant natural light through dual sliding glass doors and flows seamlessly into the island kitchen, complete with a walk-in pantry and a sink perfectly placed beneath a window overlooking the backyard.
The private master suite, set apart on the left wing for maximum privacy, includes dual vanities, a two-person shower, and an expansive walk-in closet. On the opposite side, four guest bedrooms are thoughtfully arranged in pairs, each sharing a convenient Jack-and-Jill-style bathroom.
Additional features include a spacious laundry/mudroom, designed as a functional transition between the garage and the main living space.
=> Looking for a custom Barndominium floor plan? Click here to fill out our form, a member of our team will be in touch.
