Specifications
- Area: 1,000 sq. ft.
- Bedrooms: 2
- Bathrooms: 1.5
- Stories: 2
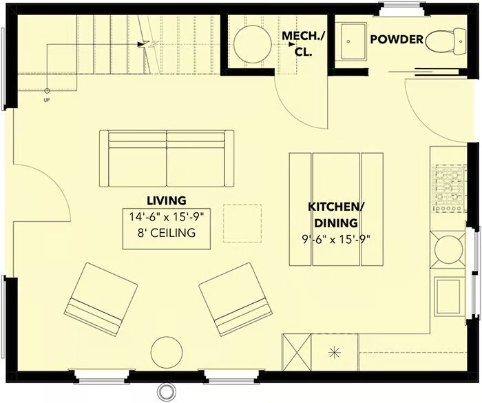
Welcome to the gallery of photos for the Two-Story Barndominium House Plan . The floor plan is shown below:








Blending charm and function, this 1,000 sq. ft. home features a retro-barn inspired design with a mix of brick and board-and-batten siding and distinctive sliding barn doors at the front.
The main level offers a completely open layout, seamlessly combining the living room, kitchen, and dining area into one versatile space. A kitchen window over the sink brings in natural light, while a powder room tucked in the back corner adds convenience.
Upstairs, you’ll find two bedrooms with vaulted ceilings and a full bath, creating a comfortable and efficient living arrangement.
=> Looking for a custom Barndominium floor plan? Click here to fill out our form, a member of our team will be in touch.
