4-Bedroom Over 3,000 Square Foot Barndominium with Wraparound Porch (Floor Plan)

0 Shares

Specifications

  • Area: 3,048 sq. ft.
  • Bedrooms: 4
  • Bathrooms: 3
  • Stories: 2
  • Garages: 2

Welcome to the gallery of photos for the Over 3,000 Square Foot Barndominium with Wraparound Porch . The floor plans are shown below:

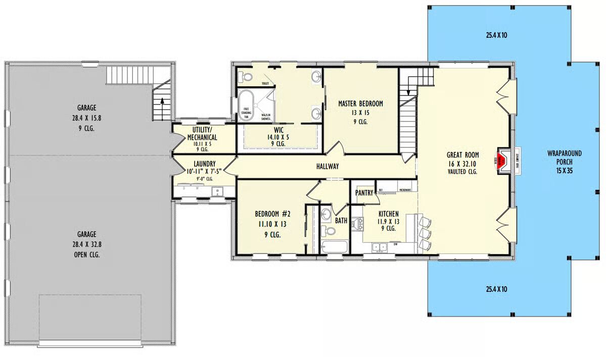
Main level floor plan
Second level floor plan

Buy This Plan

The main exterior shot clearly illustrates the dramatic contrast and complementary design of the large white residence and the adjacent red barn structure.
This barndominium-style house blends a white modern farmhouse look with a striking red barn, creating a unique and charming rural aesthetic.
A front-angle view highlights the distinct gambrel roof of the red barn, complementing the sleek lines of the main white barndominium structure.
The dedicated red barn stands proudly, showcasing its functional form with a contrasting black metal roof and multiple windows.
This view from the rear-side emphasizes the architectural connection between the white barndominium and the bold, traditional red barn.
The back of the main house shows the two-story white siding and black-framed windows, connecting seamlessly to the striking red barn component.
An elevated view captures the impressive brick chimney and the deep, covered porch that extends from the main living area.
This angle captures the full grandeur of the home’s wooden porch structure, with heavy timber beams creating an inviting, rustic outdoor living space.
The welcoming front facade features a wide, gabled porch supported by exposed wooden beams, making a grand yet rustic entrance.
A great perspective showcasing the large two-story form of the white barndominium and the spacious covered porch with exposed rafters.
The long-distance view perfectly balances the modern white barndominium with its classic red barn, united by dark metal roofs and a lush green setting.

Buy This Plan

Timeless architectural details bring country charm and inviting curb appeal to this stunning Barndominium-style home, featuring 3,000 square feet of living space, a 1,500-square-foot garage with loft, and a spacious 1,035-square-foot covered porch perfect for outdoor relaxation.

Inside, an expansive great room with a cozy fireplace flows seamlessly into the square-shaped kitchen, ideal for both casual family living and entertaining.

The master suite and a secondary bedroom are conveniently located on the main level, while the laundry room doubles as a mudroom, offering direct access to the garage for added practicality.

Upstairs, bedrooms 3 and 4 share a Jack-and-Jill bathroom, complemented by a versatile loft and dedicated study or office space, perfect for remote work or relaxation.

Designed with a Pre-Engineered Metal Building (PEMB) structure in mind, this plan ensures durability, cost-efficiency, and quick construction. The PEMB design allows for rapid installation and flexible interior layouts since it does not rely on load-bearing interior walls.

For those preferring a more traditional approach, this metal house plan is also available with 2×6 conventional wood framing, offering a customizable blend of strength, efficiency, and modern barndominium living.

Top 5 Mistakes DIY Barndo Builders Make!
Most self-builders lose $10K+ before breaking ground.
Grab the Planner

=> Looking for a custom Barndominium floor plan? Click here to fill out our form, a member of our team will be in touch.

See also  Double-Story, 3-Bedroom Barndominium House with 3 Garage Bays (Floor Plans)
💸 80% of Barndo Budgets Blow Up in Planning
Get the $7 tool that helps you avoid delays, overbidding & costly mistakes.
Grab the $7 Planner
0 Shares

Lisa Young

Lisa Young, writer and construction pro, crafts custom homes. Captivated by barndominiums for four years, she shares insights and advice in engaging articles, empowering readers to create unique living spaces mirroring their aspirations. Join her exciting journey exploring barndominium living.

Recent Posts