Specifications
- Area: 4,314 sq. ft.
- Bedrooms: 4
- Bathrooms: 3.5+
- Stories: 2
- Garages: 2
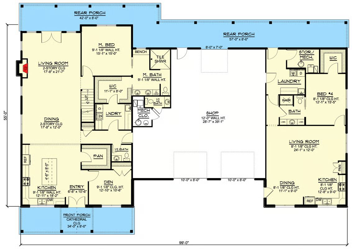
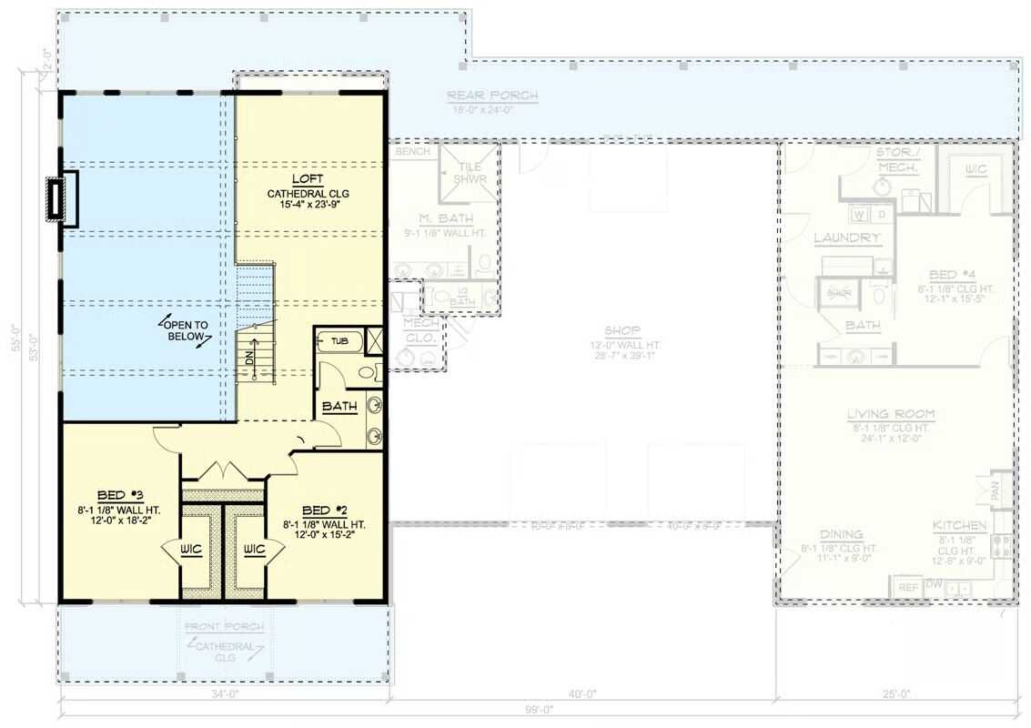
Welcome to the gallery of photos for the Multi-Generational Barndo-Style House with Massive Connecting Garage Shop – 4314 Sq Ft. The floor plans are shown below:






Blending practicality with modern barndominium style, this home offers 1,455 sq. ft. of garage and shop space separating two independent yet connected living units — an ideal solution for multi-generational living or guest accommodations.
Designed with durable 2×6 exterior walls and finished in corrugated metal siding, it combines rustic appeal with lasting quality.
The main residence, located on the left, welcomes you with an open-concept design featuring soaring two-story ceilings above the living and dining areas. A spacious kitchen makes entertaining effortless, while a nearby den offers a quiet place to relax.
The main-level primary suite includes a spa-style 5-fixture bath and a walk-in closet with direct access to the laundry. Upstairs, two additional bedrooms mirror each other in layout and share a central loft — a perfect hangout for kids or teens.
On the right, a single-level secondary unit provides fully independent living. Highlights include an open living area with a corner kitchen, a private bedroom with en-suite bath, a walk-in closet, and its own laundry room — offering both comfort and privacy.
The oversized garage/shop area is designed with two 10′ x 8′ front-facing doors and an additional 8′ x 7′ rear door, delivering abundant space for vehicles, storage, or workshop needs.
Perfect for families seeking flexibility, privacy, and functionality, this barndominium design balances rustic charm with modern convenience.
=> Looking for a custom Barndominium floor plan? Click here to fill out our form, a member of our team will be in touch.
