Specifications
- Area: 2,425 sq. ft.
- Bedrooms: 3
- Bathrooms: 2.5
- Stories: 2
- Garages: 1
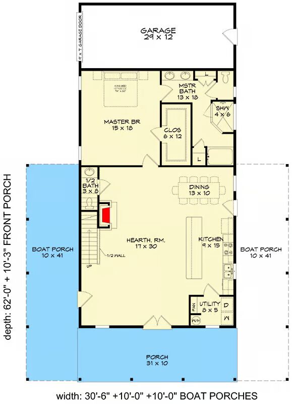
Welcome to the gallery of photos for the Barndominium-style Home with Two Story Great Room – 2425 Sq Ft. The floor plans are shown below:







This stunning Barndominium-style home plan offers 3 bedrooms, 2.5 baths, and 2,425 square feet of beautifully designed heated living space.
Blending rustic charm with modern comfort, the layout provides open-concept living areas, ideal for entertaining or relaxed family gatherings.
Enjoy 1,125 square feet of outdoor living space, perfect for alfresco dining, lounging, or simply taking in the surrounding views.
With its seamless indoor-outdoor flow and timeless barndominium appeal, this home delivers the perfect balance of style, function, and country-inspired sophistication.
=> Looking for a custom Barndominium floor plan? Click here to fill out our form, a member of our team will be in touch.
