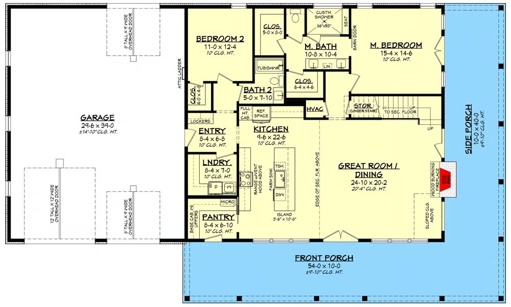
Specifications
- Area: 2,782 sq. ft.
- Bedrooms: 4
- Bathrooms: 3
- Stories: 2
- Garages: 4
Welcome to the gallery of photos for the Modern Farmhouse Barndominium House Under 2800 Square Feet . The floor plans are shown below:
















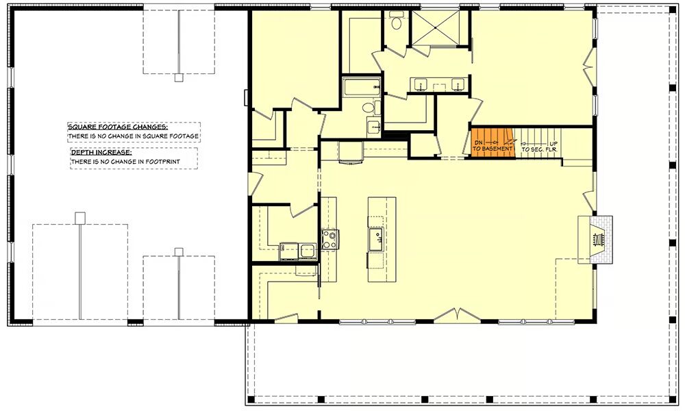
This stunning 2-story modern farmhouse barndominium offers 4 bedrooms, 3 bathrooms, and 2,782 sq. ft. of living space, thoughtfully designed with conventional wood framing and 2×6 exterior walls for lasting quality.
The heart of the home features an open-concept kitchen, dining area, and great room with a soaring 20’4″ ceiling and cozy fireplace. A corner porch, accessible from all three rooms, extends the living space outdoors, making it perfect for entertaining.
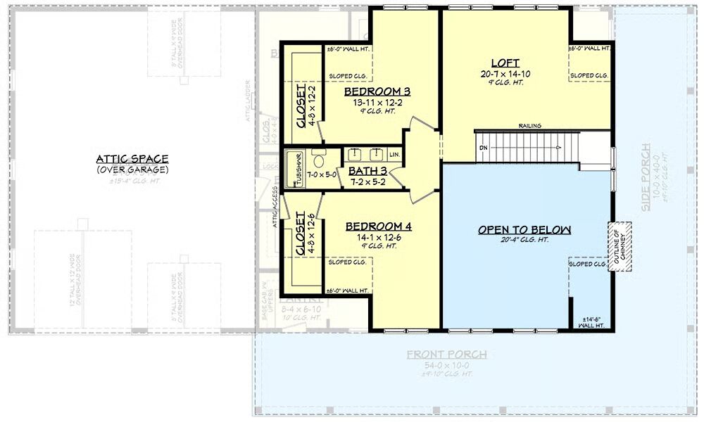
Each bedroom is generously sized with its own walk-in closet, while the luxurious main suite boasts dual closets and an oversized walk-in shower. Upstairs, a versatile loft overlooks the great room, offering additional living or recreational space.
The oversized garage is designed with flexibility in mind: the left bay features a 12′ x 12′ overhead door for RVs or larger vehicles, while the right bay offers dual 9′ x 8′ overhead doors in front and back, creating convenient drive-through access.
=> Looking for a custom Barndominium floor plan? Click here to fill out our form, a member of our team will be in touch.
