Specifications
- Area: 1,895 sq. ft.
- Bedrooms: 4
- Bathrooms: 2
- Stories: 2
- Garages: 2
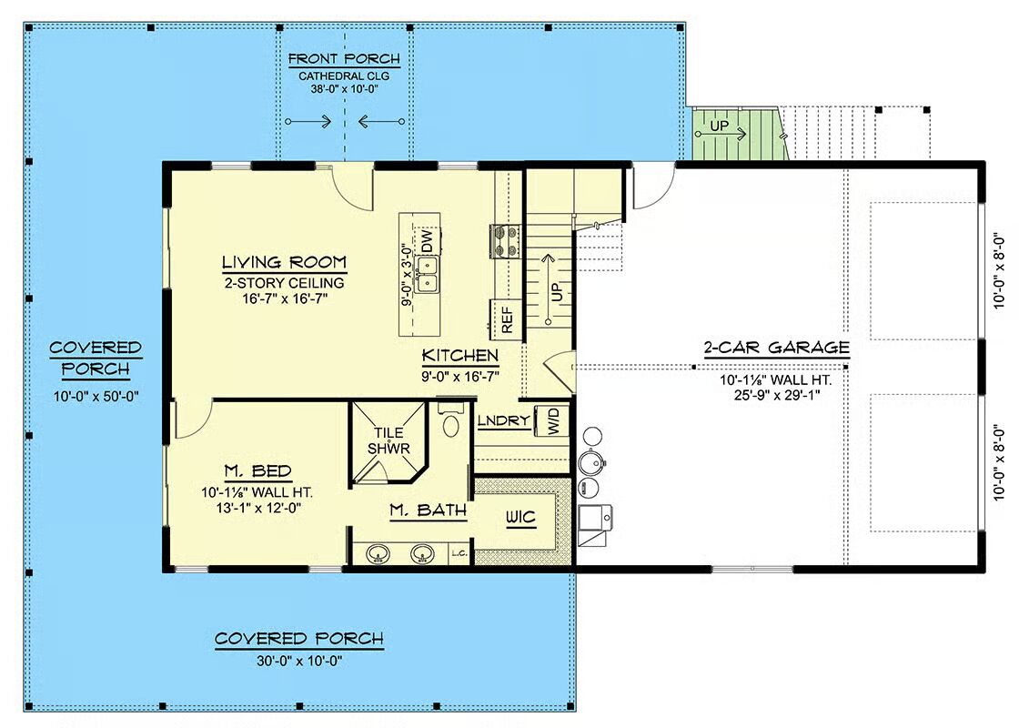
Welcome to the gallery of photos for the Modern Barndominium House Master Down, Wrap-Around Porch. The floor plans are shown below:








This 1,895 sq. ft. modern barndominium showcases refined farmhouse style with a crisp white exterior, bold black accents, and warm natural wood details.
The thoughtfully designed floor plan offers 4 bedrooms, 2 bathrooms, and a generous 895 sq. ft. side-entry two-car garage, delivering both style and functionality.
Inside, a bright open-concept layout welcomes you with 10-foot ceilings on the main level and a stunning two-story great room that sets an impressive tone while enhancing natural light and connectivity throughout the home.
The kitchen, dining, and great room flow seamlessly together, creating an ideal space for everyday living, entertaining, and family gatherings.
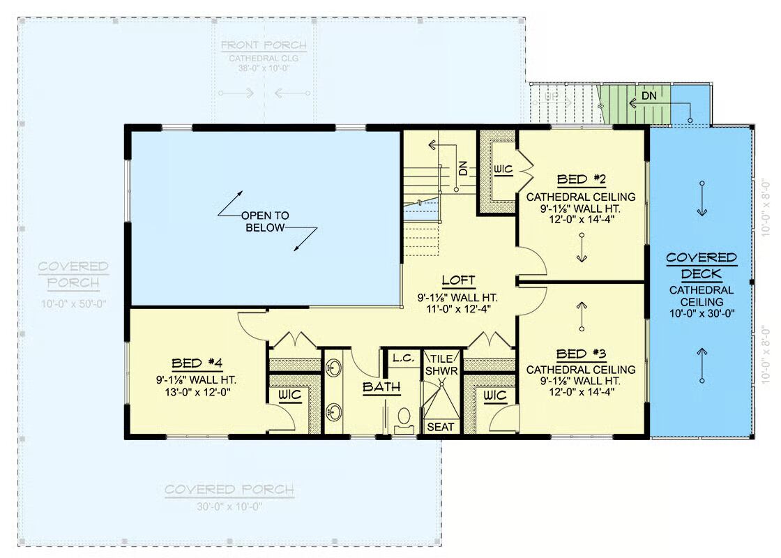
The private main-level owner’s suite provides a peaceful retreat, while three additional bedrooms are located upstairs alongside a versatile loft, offering flexible space for guests, a home office, or recreation.
Outdoor living is equally impressive, featuring an expansive 880 sq. ft. wrap-around porch and an additional 300 sq. ft. deck, perfect for morning coffee, evening relaxation, or hosting friends while enjoying views from multiple outdoor settings.
=> Looking for a custom Barndominium floor plan? Click here to fill out our form, a member of our team will be in touch.
