Specifications
- Area: 2,152 sq. ft.
- Bedrooms: 4
- Bathrooms: 2.5
- Stories: 2
- Garages: 3
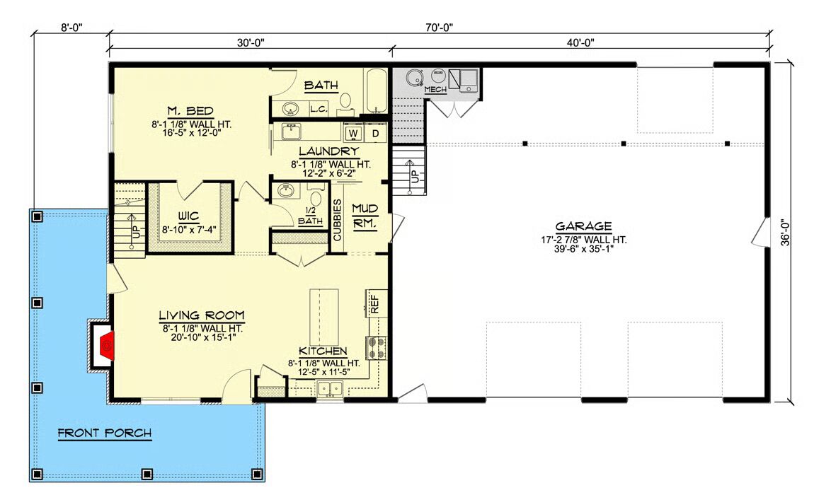
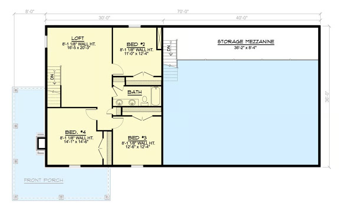
Welcome to the gallery of photos for the Barndominium with Open Living Space and Storage Mezzanine. The floor plans are shown below:






This thoughtfully designed barndominium blends simplicity with convenience, offering a functional layout ideal for modern living. The right side of the home is dedicated to an oversized garage with a 36’2″-wide by 8’4″-deep storage mezzanine, perfect for organization or hobby space.
A welcoming wraparound porch leads you into an open-concept living room and island kitchen, anchored by a cozy fireplace that creates a warm, inviting atmosphere.
The main-level primary suite is privately tucked toward the rear of the home and includes direct access to the laundry room for added ease.
Upstairs, a spacious loft connects to three secondary bedrooms, all sharing a full bath with a double-sink vanity and convenient linen closet.
Finished with durable corrugated metal siding, this home combines rustic barndominium charm with smart, livable design.
=> Looking for a custom Barndominium floor plan? Click here to fill out our form, a member of our team will be in touch.
