Welcome to the gallery of photos for the Barndominium-Style House with RV-Friendly Garage – 3274 Sq Ft. The floor plans are shown below:
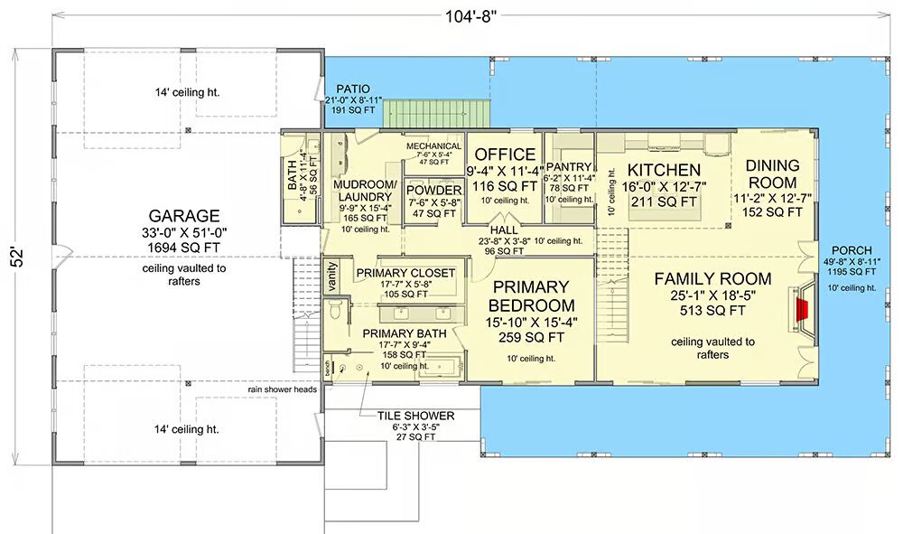
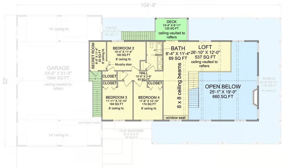
Main level floor planSecond level floor plan
Buy This PlanA grand front entrance features a towering chimney and a deep covered porch supported by rustic wood columns.This contemporary design mixes board-and-batten siding with a sleek metal roof and an appealing second-story balcony.This classic white Barndominium features a symmetrical front with a clean gable roofline and large black-framed windows.The side view highlights a two-car garage under a prominent gable and a long, welcoming covered porch stretching across the main body of the house.A modern back view of the house showcases a large garage door, an upper balcony with exterior stairs, and an extended covered patio.This charming facade is defined by a central stone chimney, an expansive wrap-around porch, and clean vertical white siding.The stunning living room is anchored by a floor-to-ceiling stone fireplace under an airy, vaulted ceiling.An elegant dining area boasts a vaulted ceiling, a modern chandelier, and oversized glass doors leading to the exterior.The bright, open-concept kitchen features white cabinetry, a large marble-topped island with seating, and stylish black industrial bar stools.A cozy bedroom includes an eye-catching framed gallery wall above the bed and direct access to the outdoors via a large glass sliding door.The sleek bathroom is a bright, white retreat with a built-in tub, a large window, and double vanity sinks.An impressive loft area overlooks the kitchen below, featuring vaulted ceilings with exposed wood beams and cable railing for a modern look.
This stunning Barndominium-style home combines rustic charm with modern functionality, offering 4 bedrooms, 3.5 bathrooms, and 3,274 square feet of beautifully designed living space.
A highlight of this plan is the spacious 4-car RV-friendly garage, featuring drive-through capability and 1,695 square feet of parking—perfect for large vehicles or hobby enthusiasts. A convenient full bath at the rear of the garage provides a practical clean-up space after a day’s work.
The inviting wraparound porch, extending along three sides of the home, offers nearly 1,400 square feet of covered outdoor living, accessible from the master suite, the 2-story family room, the dining room, and the mudroom—ideal for relaxation or entertaining guests.
Inside, a dedicated home office creates the perfect work-from-home environment. The main-floor master suite ensures privacy and convenience, while the three upstairs bedrooms, a shared bath, and a loft overlooking the family room provide comfort and charm for family or guests.
With vaulted ceilings, an impressive loft, a safe room, and breathtaking views, this barndominium offers the perfect blend of style, comfort, and functionality—complete with an attached RV garage built for versatility and space.
=> Looking for a custom Barndominium floor plan? Click here to fill out our form, a member of our team will be in touch.
đź’¸ 80% of Barndo Budgets Blow Up in Planning
Get the $7 tool that helps you avoid delays, overbidding & costly mistakes.
Lisa Young, writer and construction pro, crafts custom homes. Captivated by barndominiums for four years, she shares insights and advice in engaging articles, empowering readers to create unique living spaces mirroring their aspirations. Join her exciting journey exploring barndominium living.
Specifications
Area: 2,486 sq. ft.
Bedrooms: 3
Bathrooms: 2
Stories: 2
Welcome to the gallery of photos for the Expansive Modern Farmhouse House with Split Bedrooms and Vaulted Great...
Specifications
Area: 2,558 sq. ft.
Bedrooms: 4
Bathrooms: 2.5
Stories: 2
Garages: 1-3
Welcome to the gallery of photos for the Barndominium-Style Modern Farmhouse with Massive...