Specifications
- Area: 2,671 sq. ft.
- Bedrooms: 4
- Bathrooms: 2.5
- Stories: 2
- Garages: 3
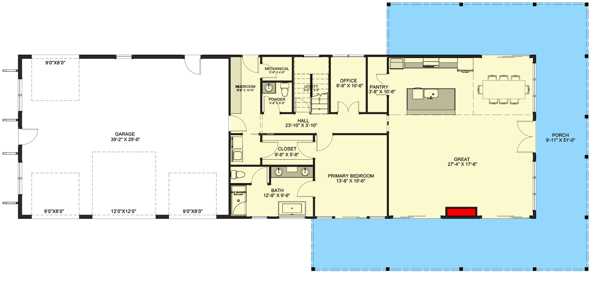
Welcome to the gallery of photos for a four-bedroom Barndominium-Style House with an RV-Friendly 1,555 Square Foot Garage. The floor plans are shown below:






Buy This Plan












Welcome to a residence where contemporary architecture meets the rustic allure of a barndominium. This home, built with robust 2×6 framing, unfolds a narrative of space, elegance, and unparalleled convenience over its 2,671 square feet of heated living space.
From the outset, the attached 3-car garage makes a statement of functionality and style. It hosts two bays, each equipped with 9′ by 8′ overhead doors, ensuring ease of access and ample space for your vehicles.
Notably, one bay offers the luxury of drive-through access – a nod to the meticulous thought infused into every aspect of this design. The central bay, designed with the recreational vehicle enthusiast in mind, features a 12′ by 12′ overhead door, opening up to a generous 1,555 square feet of parking area.
Yet, the allure of this home is not confined to its interior. Surrounding three sides of the home, a 9’11” deep porch unfolds 1,217 square feet of covered outdoor space. Every inch is a testament to thoughtful design, offering a sanctuary where relaxation and nature converge, where every sunset is a personal experience, and every dawn a private encore.
Inside, grandeur takes on a new meaning. The 2-story great room, a symphony of space and elegance, flows with poetic grace into a kitchen that is both a culinary haven and an artist’s canvas.
The walk-in pantry exemplifies convenience while the spacious island is as much a centerpiece of social interaction as it is of culinary innovation. Adjacent, the dining room stands as a guardian of openness, enhancing the ethereal feel that defines the entire living space.
A private home office, nestled behind elegant French doors, offers a sanctuary of productivity and inspiration. Here, silence is a companion, and every thought, a journey of creation.
The master bedroom, conveniently positioned across the hall, is more than a sleeping quarter – it’s an experience. The direct access to the laundry room through a walk-in closet is a silent testimony to a design that prioritizes convenience without compromising elegance.
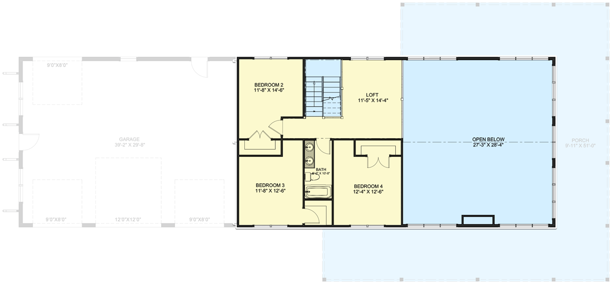
Ascending the stairs unveils a new chapter of this architectural narrative. Three additional bedrooms await, each a haven of space and tranquility, sharing a hall bathroom adorned with two vanities – a gentle reminder of the home’s unwavering commitment to convenience.
Overlooking the floor below, a loft adorned with an open rail design echoes the charm and appeal that is the home’s signature. Every gaze is a dance of space and elegance, a silent sonnet of a design where every inch, every corner, is a stanza of a poem called home.
Welcome to a residence where every day is a sojourn into luxury, where space is a companion, and elegance, a silent, ever-present melody. Welcome to a barndominium where dreams find a space and aspiration, a home. Welcome to your sanctuary.
=> Looking for a custom Barndominium floor plan? Click here to fill out our form, a member of our team will be in touch.

