Specifications
- Area: 2,217 sq. ft.
- Bedrooms: 4
- Bathrooms: 3.5
- Stories: 1
- Garages: 2
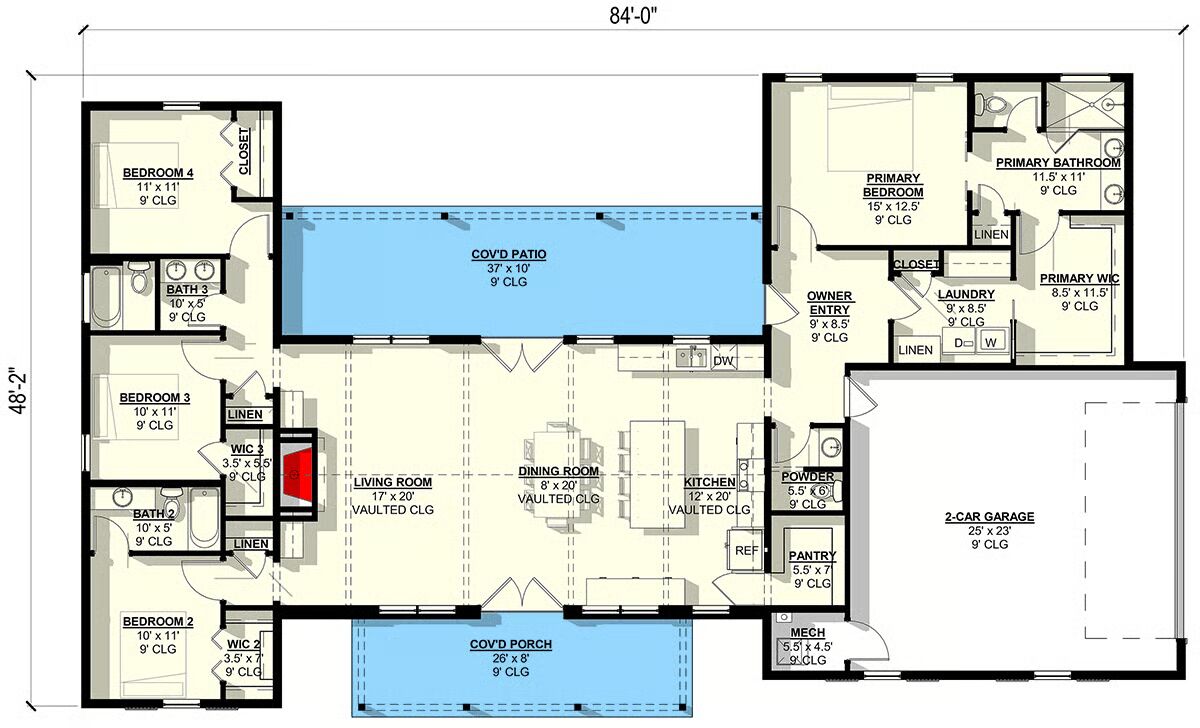
Welcome to the gallery of photos for the Barndominium Ranch House with Vaulted Living and Dual Outdoor Spaces. The floor plan is shown below:












This 2,217 sq. ft. barndominium-style ranch combines modern charm with everyday functionality, offering 4 bedrooms, 3.5 baths, and a 634 sq. ft. 2-car garage.
Step inside to a vaulted open-concept living space, where the great room, dining area, and island kitchen flow seamlessly together.
French doors on either side of the great room extend the living area outdoors, creating a natural connection to the 37’ covered back patio—perfect for entertaining or relaxing. A welcoming 26’ covered front porch adds curb appeal and a touch of farmhouse charm.
The primary suite occupies its own private wing, complete with a spacious bedroom, luxurious ensuite, and a walk-in closet that connects directly to the laundry room.
Across the home, three secondary bedrooms share two full baths, offering comfort and convenience for family or guests.
Practical touches throughout include a walk-in pantry, mudroom with built-ins, and a powder bath conveniently located near the garage entry.
=> Looking for a custom Barndominium floor plan? Click here to fill out our form, a member of our team will be in touch.
