Specifications
- Area: 3,477 sq. ft.
- Bedrooms: 4
- Bathrooms: 3.5+
- Stories: 2
- Garages: 4
Welcome to the gallery of photos for the Barndominium House with Massive 4000 Square Foot Shop. The floor plans are shown below:









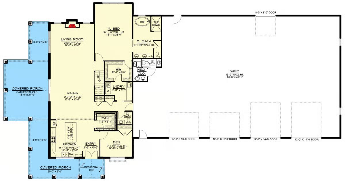
This 4-bedroom barndominium home offers 3,477 sq. ft. of heated living space paired with an impressive 4,006 sq. ft. garage/workshop, designed with conventional 2×6 wood framing and finished with durable corrugated metal siding.
Inside, the heart of the home showcases a two-story open-concept living and dining area, perfect for gatherings. The spacious kitchen makes entertaining effortless, while a nearby den offers a private retreat for work or relaxation.
The main-level master suite features a spa-inspired 5-fixture bath, a generous walk-in closet, and direct access to the laundry room for convenience.
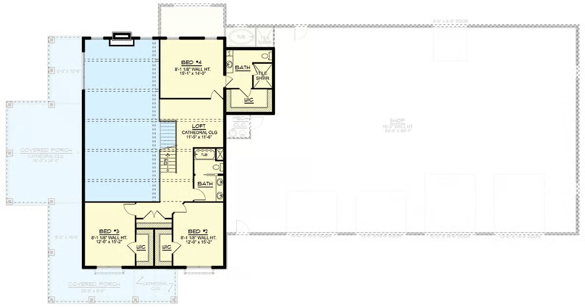
Upstairs, three additional bedrooms each include walk-in closets. Bedrooms 2 and 3 share a hall bath, while bedroom 4 enjoys a private en-suite. A central loft provides a versatile gathering space for family or guests.
The oversized garage offers endless possibilities, with two 12′ x 10′ doors, two 12′ x 14′ RV-friendly doors, and an additional 8′ x 8′ rear door. Whether you need storage, a workshop, or hobby space, this garage delivers unmatched functionality.
Blending rustic charm with modern practicality, this barndominium is ideal for families, hobbyists, or anyone seeking spacious living paired with incredible garage amenities.
=> Looking for a custom Barndominium floor plan? Click here to fill out our form, a member of our team will be in touch.
