Specifications
- Area: 3,687 sq. ft.
- Bedrooms: 3
- Bathrooms: 3
- Stories: 2
- Garages: 2
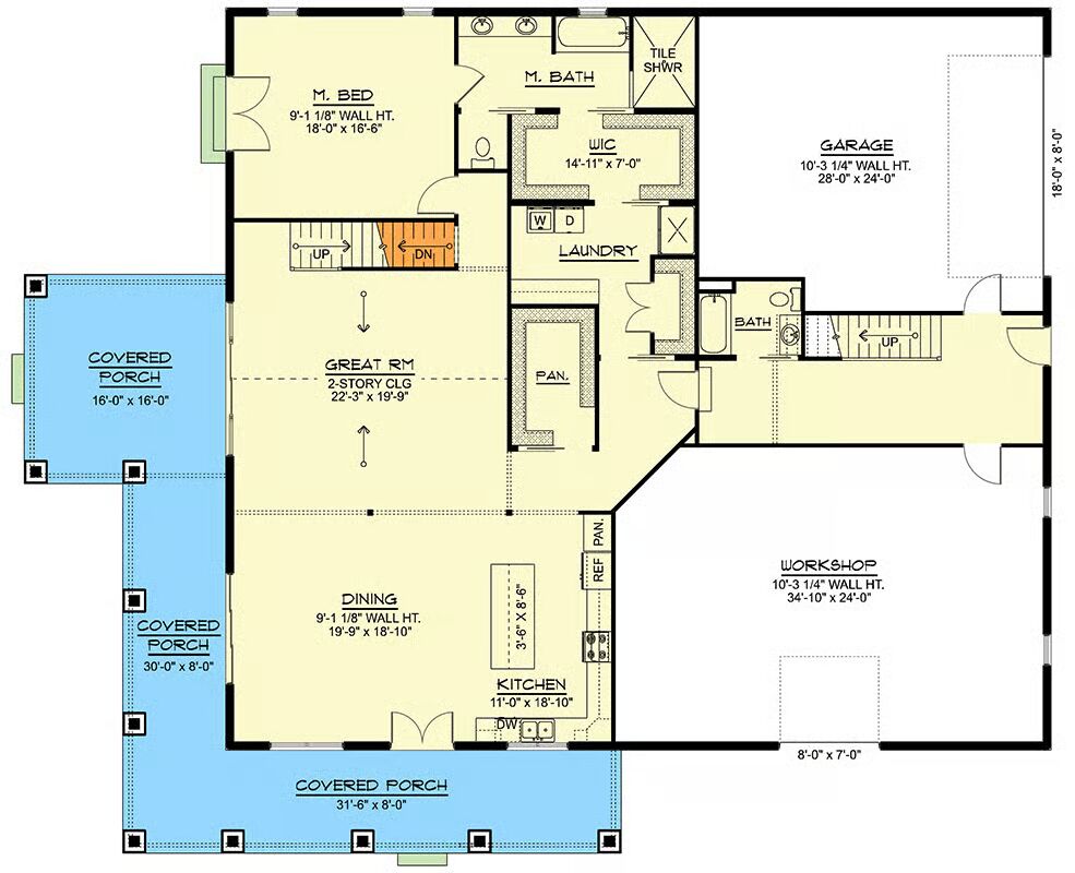
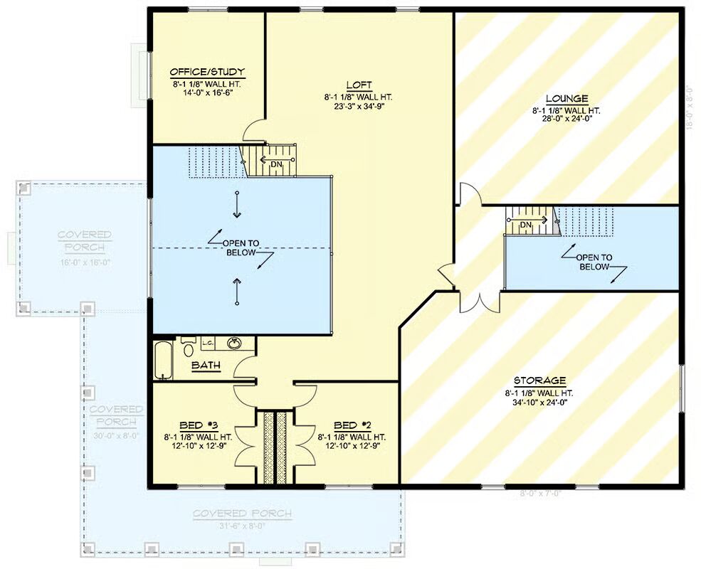
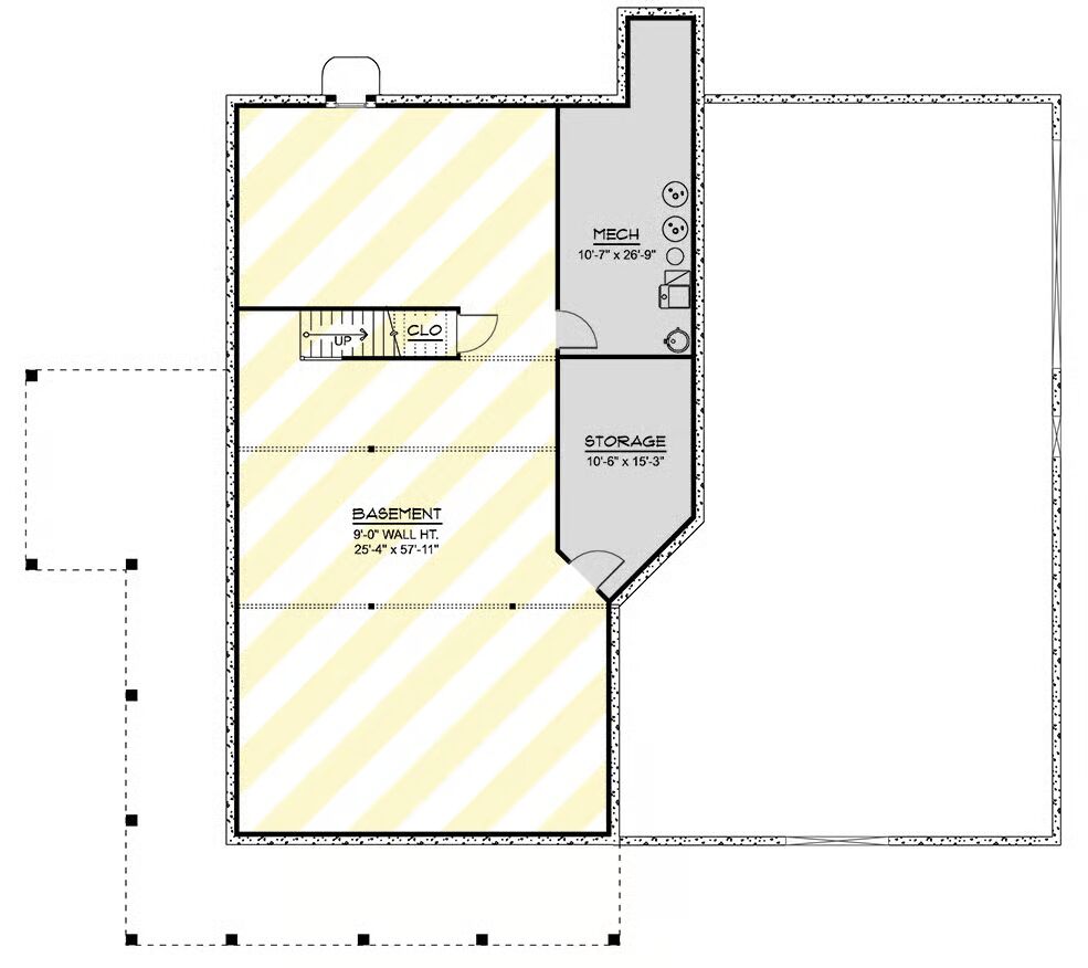
Welcome to the gallery of photos for the Spacious Barndominium with Workshop and Wraparound Porch. The floor plans are shown below:



Buy This Plan




Experience exceptional craftsmanship and modern barn-style living in this expansive 3,687 sq. ft. Barndominium, featuring 3 bedrooms, 3 bathrooms, a 684 sq. ft. two-car attached garage, and a spacious 1,227 sq. ft. workshop—perfect for hobbyists or additional storage.
Step inside to a grand two-story great room, where the open layout seamlessly connects the living area, dining space, and a well-appointed kitchen complete with a butler’s pantry.
The main level is designed for effortless living, with convenient access to a home office and a laundry room located just off the master suite.
The first-floor master suite offers a private retreat with direct laundry access for ultimate convenience. Upstairs, two additional bedrooms accompany a versatile loft and lounge area, ideal for a playroom, media space, or quiet retreat.
Outdoor living shines with a charming wraparound porch, perfect for relaxing, entertaining, or enjoying peaceful views from every angle.
Expand your possibilities with an optional 2,150 sq. ft. lower level, providing room for future living areas, recreation, or storage. An additional 1,612 sq. ft. bonus space offers even more flexibility for customization, making this home as adaptable as it is inviting.
This barndominium combines spacious design, modern amenities, and endless potential—all in one exceptional property.
=> Looking for a custom Barndominium floor plan? Click here to fill out our form, a member of our team will be in touch.
