Specifications
- Area: 3,481 sq. ft.
- Bedrooms: 3
- Bathrooms: 3.5
- Stories: 2
- Garages: 3
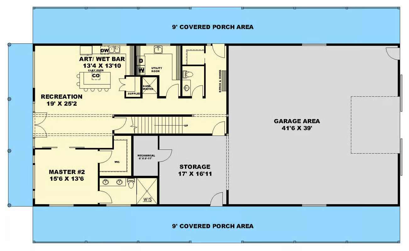
Welcome to the gallery of photos for the Spacious Barndominium with Dual Master Suites and Expansive Garage. The floor plans are shown below:







This 3,481 sq. ft. barndominium-style home combines rustic charm with modern functionality, featuring 3 bedrooms, 3.5 baths, and a side-entry 3-car garage with 2,034 sq. ft. of space.
Step inside to a bright open-concept layout, where the great room with soaring ceilings seamlessly connects to the kitchen and dining area. The chef-inspired kitchen includes a central island and cozy breakfast nook, while a private office adds flexibility for remote work.
Both the main and upper levels boast master suites, each with spa-like baths and spacious walk-in closets. An additional bedroom is thoughtfully positioned to maximize privacy.
A large recreation room with an art/wet bar provides the ultimate entertainment space, while the garage includes a dedicated workshop for hobbyists and projects.
Enjoy the outdoors with multiple covered porches and a spacious deck, perfect for relaxing or entertaining. With its dual master suites, versatile recreation spaces, and expansive garage, this home delivers both comfort and practicality in one stunning design.
=> Looking for a custom Barndominium floor plan? Click here to fill out our form, a member of our team will be in touch.
