Specifications
- Area: 3,111 sq. ft.
- Bedrooms: 3
- Bathrooms: 4.5
- Stories: 2
- Garages: 5
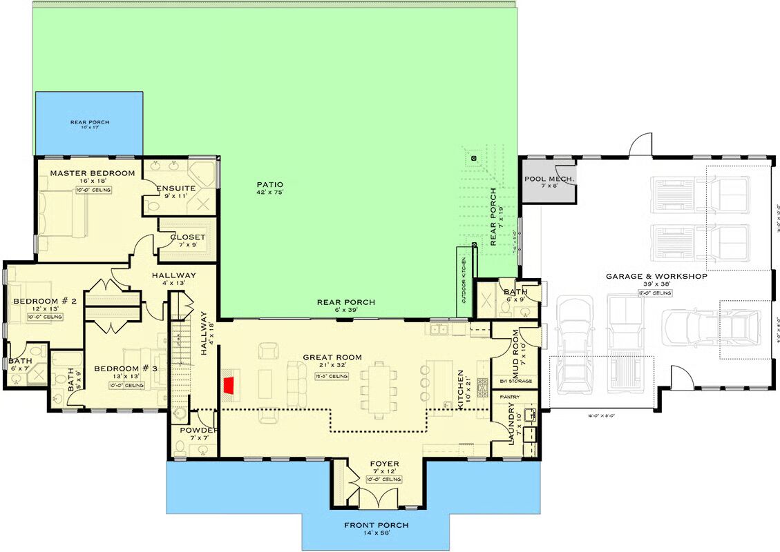
Welcome to the gallery of photos for the New American Barndominium House with Two-Story Great Room – 3111 Sq Ft. The floor plans are shown below:










Step into 3,111 sq. ft. of thoughtfully designed living with this New American barndominium plan, offering 3 bedrooms, 4.5 bathrooms, and an expansive 1,435 sq. ft. garage with room for up to 5 vehicles.
Inside, the dramatic two-story great room sets the tone with soaring vaulted ceilings, flowing effortlessly into the open-concept kitchen and dining areas—perfect for entertaining and everyday living.
The main-level primary suite creates a private retreat with a spa-inspired ensuite bath, while two additional bedrooms provide comfort and privacy for family or guests.
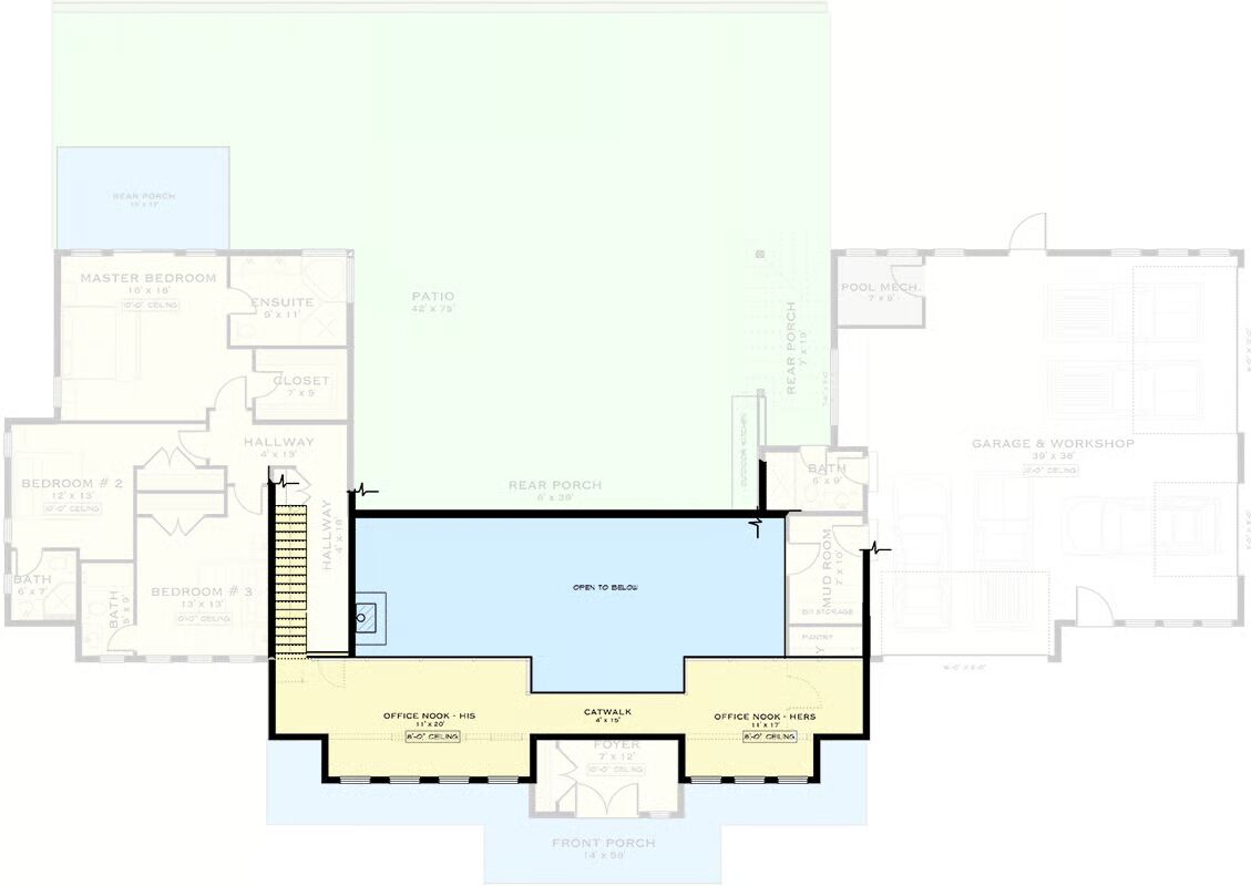
Designed with modern lifestyles in mind, this home includes dual office nooks, a versatile mudroom, and seamless indoor-outdoor living with a spacious rear porch and patio.
For those seeking even more flexibility, the optional basement foundation provides potential for additional living or recreational space.
A perfect balance of style and functionality, this barndominium combines bold design with everyday comfort—ideal for those who value space, versatility, and timeless appeal.
=> Looking for a custom Barndominium floor plan? Click here to fill out our form, a member of our team will be in touch.
