Welcome to the gallery of photos for the Monitor-Style Barndominium House with Open Loft – 2562 Sq Ft. The floor plans are shown below:
Buy This PlanA welcoming aerial view showcases the modern dark-metal barndominium with its charming covered front porch and expansive green lawn.The ultimate outdoor oasis, this barndominium has a sprawling pool, a hot tub, and a vast covered patio perfect for entertaining guests.This striking barndominium features sleek dark siding and a prominent entryway with a deep covered porch set against a big sky.The gourmet kitchen anchors the open main floor with a massive island, dark cabinetry, and striking light fixtures under the loft space.An arcade game and charming striped armchairs create a fun and cozy reading nook within the bright, airy loft area.Game on! This loft serves as an ultimate man cave with a pool table, comfy seating, and framed sports jerseys adorning the walls.The grand entertainment loft features a large sectional sofa, a dedicated bar area, and exposed wood beams for a rustic-modern feel.The modern master bathroom boasts a dark wood vanity, a marble countertop, and a walk-in shower with vertical subway tile.The spacious covered patio offers a large outdoor dining area and a separate seating spot, all overlooking the beautiful pool.Relax and gather in this stylish covered patio featuring a brick fireplace/grill area, comfortable white seating, and a lush country view.A chef’s dream, the covered patio provides a full outdoor kitchen, ample seating, and a clear view of the sparkling pool and backyard.
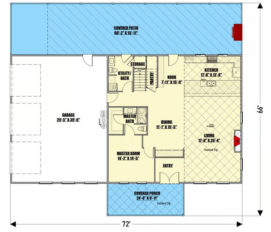
This monitor-style Barndominium house plan combines rustic charm with modern comfort, offering 3 bedrooms, 2.5 bathrooms, and 2,562 square feet of thoughtfully designed living space.
Built with conventional wood framing and durable 2×6 exterior walls, this home balances strength, efficiency, and timeless appeal.
Step inside to an open-concept main level that seamlessly connects the living, dining, and kitchen areas.
Expansive windows flood the interior with natural light, creating a bright and airy ambiance while framing stunning views of the surrounding landscape. The master suite on the main floor provides a peaceful retreat with easy access to the home’s main living areas.
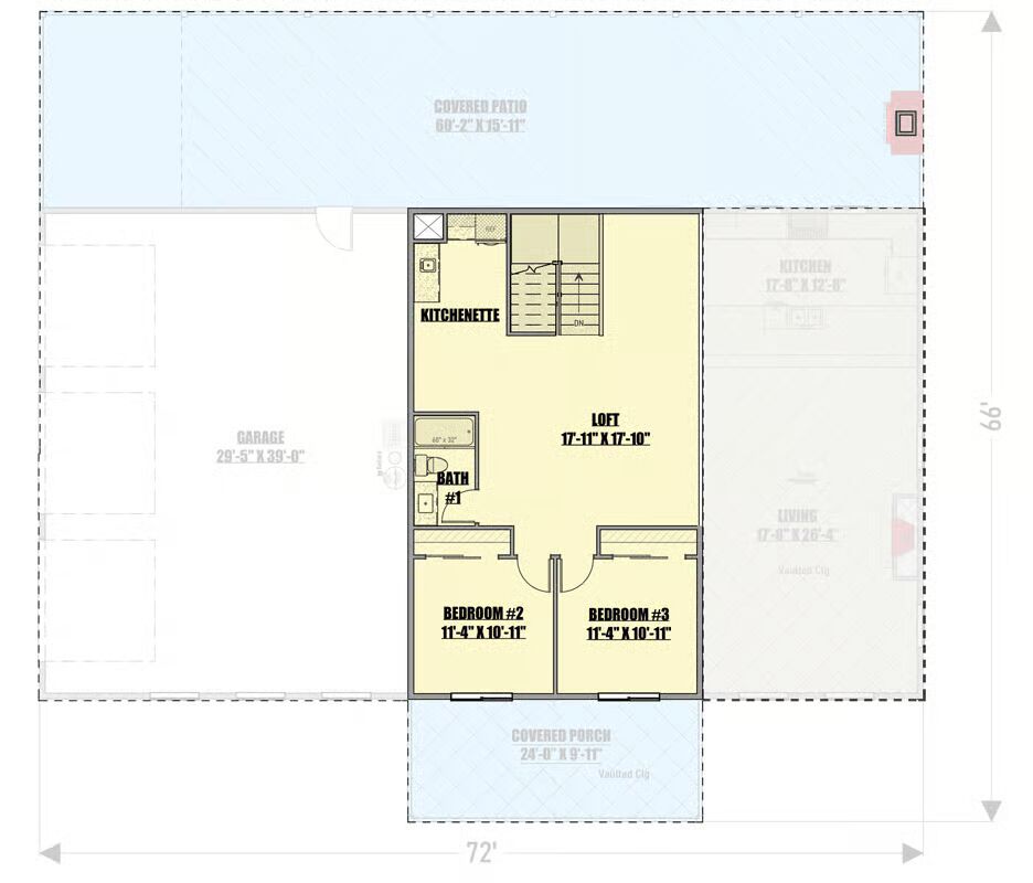
Upstairs, a spacious loft with a convenient kitchenette offers incredible flexibility—perfect as a guest suite, family lounge, or private studio.
Top 5 Mistakes DIY Barndo Builders Make!
Most self-builders lose $10K+ before breaking ground.
Blending open living spaces, panoramic windows, and versatile design, this Barndominium delivers modern country living at its finest—inviting, functional, and effortlessly connected to the outdoors.
=> Looking for a custom Barndominium floor plan? Click here to fill out our form, a member of our team will be in touch.
đź’¸ 80% of Barndo Budgets Blow Up in Planning
Get the $7 tool that helps you avoid delays, overbidding & costly mistakes.
Lisa Young, writer and construction pro, crafts custom homes. Captivated by barndominiums for four years, she shares insights and advice in engaging articles, empowering readers to create unique living spaces mirroring their aspirations. Join her exciting journey exploring barndominium living.
Specifications
Area: 2,486 sq. ft.
Bedrooms: 3
Bathrooms: 2
Stories: 2
Welcome to the gallery of photos for the Expansive Modern Farmhouse House with Split Bedrooms and Vaulted Great...
Specifications
Area: 2,558 sq. ft.
Bedrooms: 4
Bathrooms: 2.5
Stories: 2
Garages: 1-3
Welcome to the gallery of photos for the Barndominium-Style Modern Farmhouse with Massive...