Specifications
- Area: 2,769 sq. ft.
- Bedrooms: 3
- Bathrooms: 2.5
- Stories: 2
- Garages: 3-8
Welcome to the gallery of photos for the Modern Farmhouse with Home Office and Barndominium Wtyle Garage – 2796 Sq Ft. The floor plans are shown below:


Buy This Plan








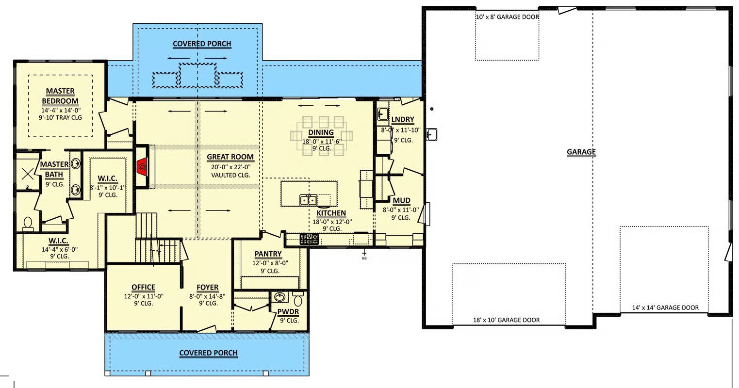
This stunning 2,769 sq. ft. Modern Farmhouse masterfully blends Barndominium and New American design elements, offering 3 bedrooms, 2.5 bathrooms, and an impressive 2,560 sq. ft. attached garage with ample space for multiple vehicles—including an RV.
A welcoming covered front porch leads into a bright and airy foyer, where a dedicated home office or library provides a quiet retreat before the home opens into its breathtaking living spaces.
At the heart of the design lies a two-story vaulted great room, seamlessly connected to the open-concept kitchen and dining area—ideal for both everyday living and entertaining.
The gourmet kitchen features a large island and walk-in pantry, while a nearby mudroom and laundry area offer everyday practicality.
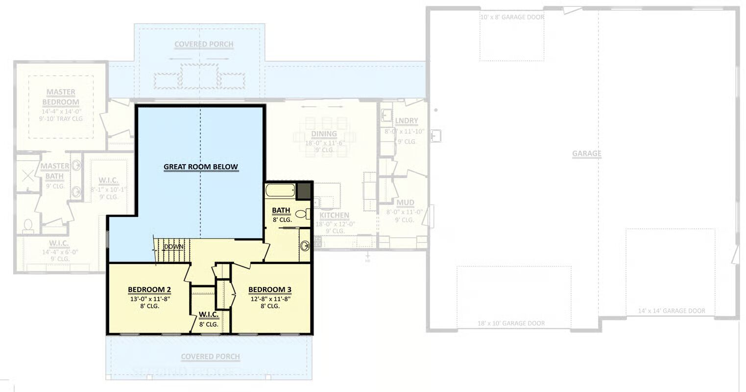
The main-level master suite is a true sanctuary, featuring a tray ceiling, spa-inspired ensuite bath, and dual walk-in closets. Upstairs, two additional bedrooms share a full bath, offering comfort and privacy for family or guests.
The expansive garage is designed for versatility, boasting an RV bay with a 14′ x 14′ overhead door, a double bay with an 18′ x 10′ door, and a rear-entry bay (10′ x 8′)—perfect for a workshop, hobby area, or recreational vehicle storage.
Enjoy peaceful mornings or relaxing evenings on the covered front and rear porches, thoughtfully designed to extend your living space outdoors and embrace the surrounding views.
=> Looking for a custom Barndominium floor plan? Click here to fill out our form, a member of our team will be in touch.
