Specifications
- Area: 2,446 sq. ft.
- Bedrooms: 1
- Bathrooms: 1.5
- Stories: 2
- Garages: 4
Welcome to the gallery of photos for the Expansive Barndominium Home with Oversized 4-Car Garage and Dual Porches. The floor plans are shown below:


Buy This Plan





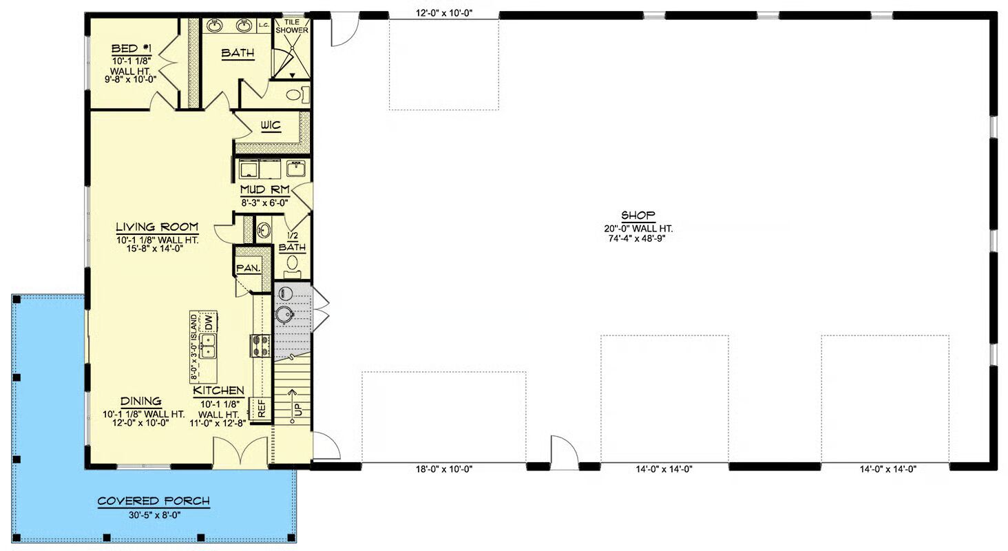
This 2,446 sq. ft. barndominium-inspired home combines modern functionality with timeless design, highlighted by clean gabled lines and exceptional indoor-outdoor living.
A massive 3,750 sq. ft. 4-car garage anchors the front of the home, providing unmatched space for vehicles, storage, or hobbies.
Inside, an airy great room with soaring ceilings seamlessly flows into the dining area and oversized kitchen, creating the perfect setting for both everyday living and entertaining.
The kitchen is complemented by a butler-style walk-in pantry, while a mudroom with built-ins and a laundry room add convenience and organization to the main level.
Upstairs, discover a versatile game/rec room and the home’s private bedroom suite, offering a serene retreat bathed in natural light.
Outdoor living is maximized with dual covered porches—a 400 sq. ft. front porch for welcoming charm and a matching 400 sq. ft. rear porch for relaxing or entertaining in style.
=> Looking for a custom Barndominium floor plan? Click here to fill out our form, a member of our team will be in touch.
