Specifications
- Area: 2,588 sq. ft.
- Bedrooms: 3
- Bathrooms: 3.5
- Stories: 2
- Garages: 6
Welcome to the gallery of photos for the Master-On-Main Barndominium-Style House Under 2600 Sq Ft with 2 RV Bays. The floor plans are shown below:













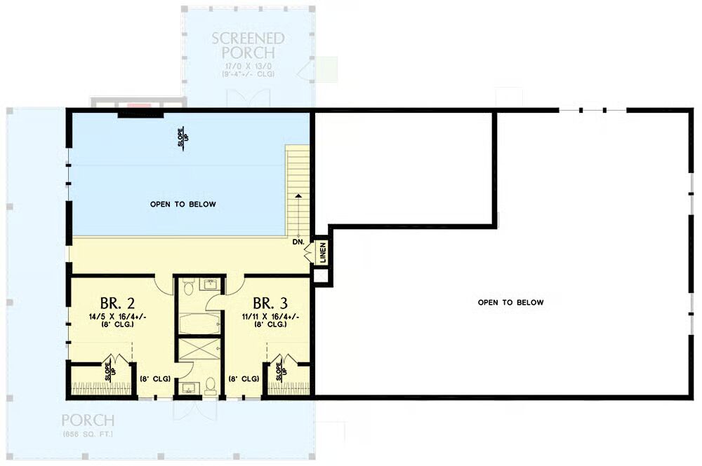
This impressive barndominium-style home offers 2,588 sq. ft. of heated living space with a thoughtfully designed floor plan and a spacious 656 sq. ft. wraparound porch for outdoor living.
The oversized garage includes two standard bays plus two RV-friendly bays, providing a remarkable 1,648 sq. ft. of parking and storage space.
The main-level master suite offers comfort and convenience, while two additional bedrooms—each with private baths— provide ideal accommodations for family or guests.
At the heart of the home, a 2-story entertaining space with fireplace creates a dramatic focal point and flows seamlessly to the screened porch.
The island kitchen with walk-in pantry connects easily to both the dining room—complete with French door access to the porch—and the great room, making it perfect for hosting gatherings.
A front-facing home office sits just off the foyer, offering a bright and private space for work or study.
Designed with conventional wood framing and durable 2×6 exterior walls, this home balances modern barndominium style with lasting quality, making it a perfect choice for families seeking comfort, functionality, and space.
=> Looking for a custom Barndominium floor plan? Click here to fill out our form, a member of our team will be in touch.
